Norden:
Käufer Provisionsfrei! Nordseeküste zum Greifen nah – charmanter Reihenbungalow in Strandnähe!
Objekt-Nr.: 8455#giEdYL

Reihenbungalow an der Nordsee

Ferienhaus an der Nordsee

Ruhige Lage

Hausansicht

Terrasse

Garten

Wohnzimmer

Wohnzimmer

Wohnzimmer

Wohnzimmer

Wohnzimmer

Küche

Küche

Schlafzimmer

Schlafzimmer

Schlafzimmer

Schlafzimmer

Flur

Flur

Badezimmer

Abstellraum Heizung

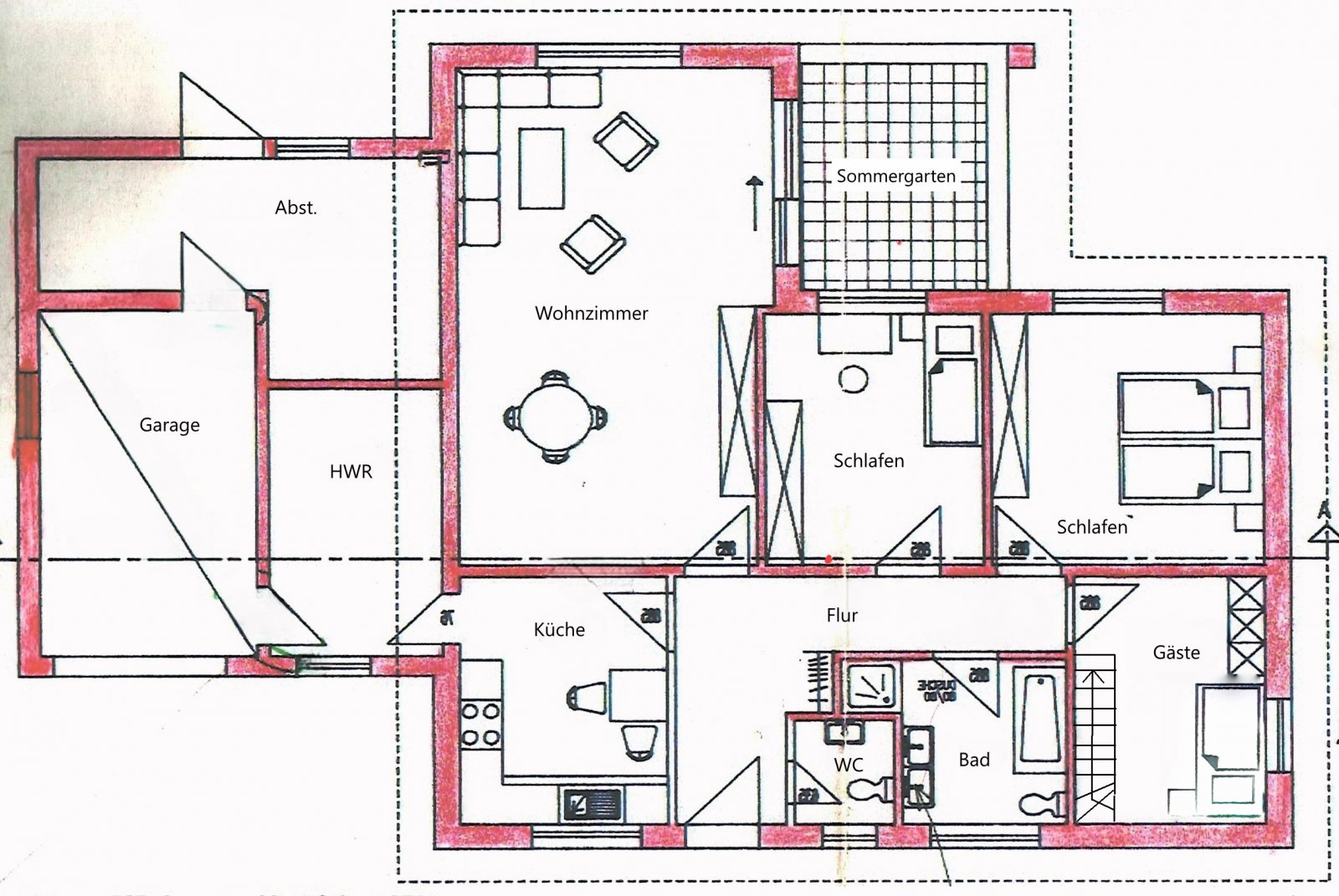
Grundriss EG






















Preis:
359.000 €
Wohnfläche ca.:
67,21 m²
Grundstück ca.:
170 m²
Zimmeranzahl:
4
An der Nordseeküste - Gemütlicher Reihenbungalow in Norddeich – nur wenige Schritte vom Meer entfernt
Dieser charmante Reihenbungalow aus dem Jahr 1971 befindet sich in einer der beliebtesten Lagen Norddeichs und bietet alles, was man sich für einen entspannten Aufenthalt an der Nordseeküste wünscht. Das Haus wurde im Jahr 2020 umfassend renoviert und präsentiert sich heute in einem äußerst gepflegten, modernen und zugleich gemütlichen Zustand. Durch die massive Klinkerbauweise wirkt das Objekt wertig und solide, während die komplett erneuerte Ausstattung eine angenehme Wohnatmosphäre schafft.
Die Lage ist eines der größten Highlights: In wenigen Gehminuten erreicht man den Strand, den Hafen, das Erlebnisbad Ocean Wave, die Seehundstation sowie zahlreiche Cafés, Restaurants und Einkaufsmöglichkeiten. Der Kurpark und die weitläufigen Deichanlagen liegen quasi vor der Haustür und machen diesen Standort zu einem idealen Ausgangspunkt für erholsame Spaziergänge, Fahrradtouren oder spannende Ausflüge.
Dank der ausdrücklich erlaubten Ferienhausvermietung eignet sich dieser Bungalow hervorragend als Kapitalanlage. Die Mieteinnahmen bewegen sich im Durchschnitt zwischen 18.000 und 20.000 € pro Jahr, vor Abzug der Vermittlungsprovision. Die Kombination aus Top-Lage, gepflegtem Zustand, kompletter Möblierung und solider Bauweise macht dieses Objekt zu einer seltenen Gelegenheit an der Nordseeküste.
Haustyp: Reihenhaus
Provisionspflichtig: nein
Küche: Einbauküche
Anzahl Schlafzimmer: 3
Anzahl Badezimmer: 1
Terrasse: 1
Barrierefrei: ja
Seniorengerecht: ja
Als Ferienhaus geeignet: ja
Letzte Modernisierung/ Sanierung: 2020
Baujahr: 1971
Verfügbar ab: nach Vereinbarung
Bodenbelag: Fliesen, Laminat
Zustand: gepflegt
Das könnte Ihnen auch gefallen







































































































































