Lähden:
Sichern Sie sich jetzt Ihr neues Zuhause in Lähden-Holte Lastrup – bezugsfertig
Objekt-Nr.: 8449#giEdYL

Moderne Bungalowhälfte

Hausansicht

Carport

Hausansicht

Terrasse

Terrasse

Wohnen/Küche

Wohnen/Küche

Wohnen/Küche

Schlafzimmer

Gäste/Büro

Flur

Badezimmer

Ebenerdige Dusche

Badezimmer

Badezimmer

Hauswirtschaftsraum

Moderne Heiztechnik

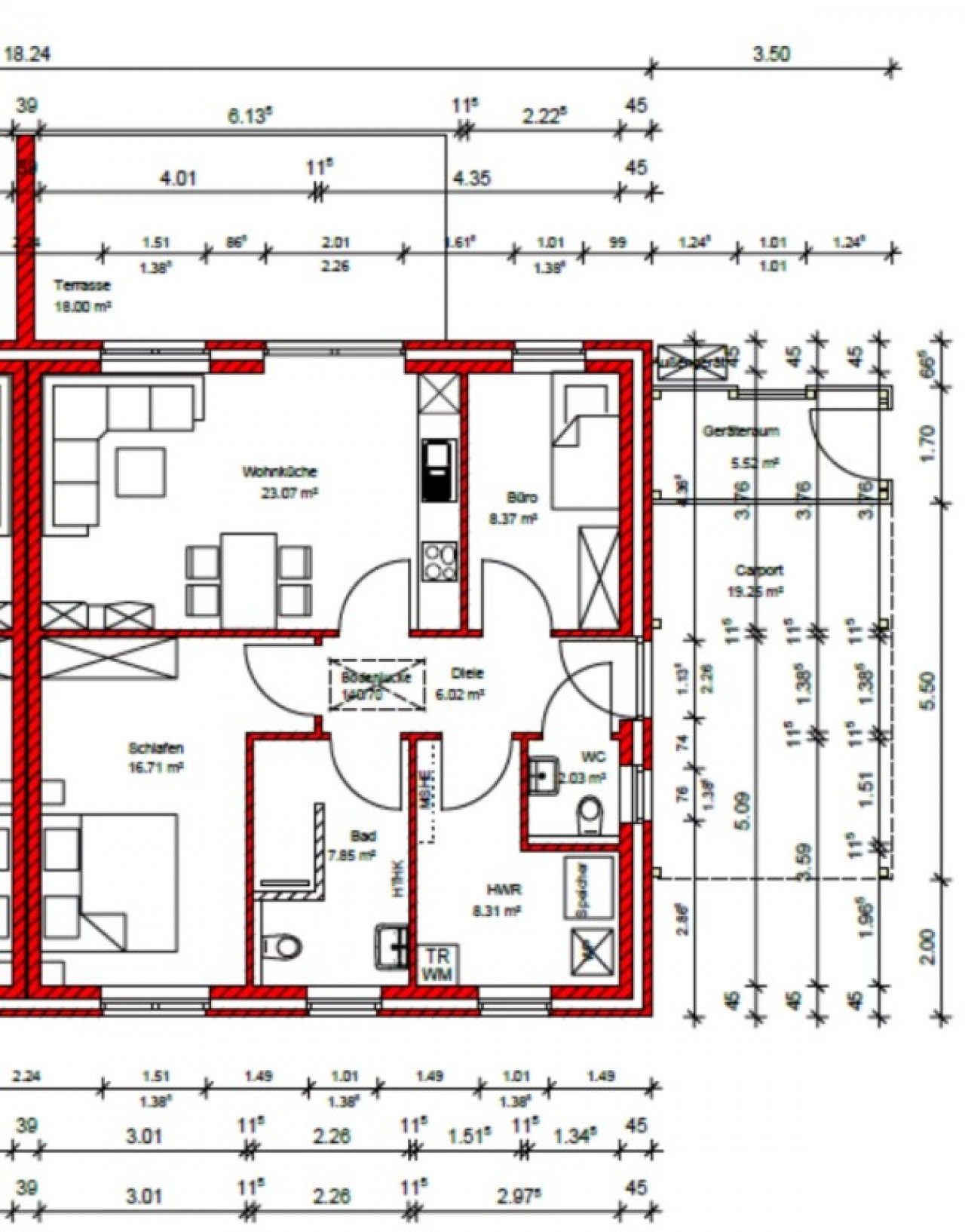
Grundriss EG

Grundriss 3D

Schnitte





















Preis:
299.000 €
Wohnfläche ca.:
74 m²
Grundstück ca.:
315 m²
Zimmeranzahl:
3
Moderne Neubau-Doppelhaushälfte – Stilvolles Wohnen auf einer Ebene in ruhiger Lage von Lähden-Holte Lastrup
Zum Verkauf steht eine hochwertig gebaute, barrierearme Doppelhaushälfte (Neubau), die modernen Wohnkomfort mit durchdachter Architektur vereint. Die im Oktober 2025 fertiggestellte Immobilie überzeugt durch eine energiesparende Bauweise nach KfW-Standard, lichtdurchflutete Räume und eine komfortable Ausstattung, die das Wohnen besonders angenehm gestaltet.
Mit einer Wohnfläche von ca. 74 m² bietet das Haus die ideale Größe für Singles, Paare oder Ruheständler, die Wert auf stilvolles und pflegeleichtes Wohnen legen. Das durchdachte Raumkonzept schafft eine gemütliche und zugleich moderne Wohnatmosphäre.
Die Immobilie ist bezugsfertig und kann nach Vereinbarung kurzfristig übernommen werden.
Profitieren Sie von einem modernen Zuhause, das Komfort, Energieeffizienz und Wohlfühlatmosphäre perfekt vereint.…
Diese Doppelhaushälfte ist mehr als nur ein Haus – sie ist ein Ort zum Wohlfühlen, Ankommen und Entspannen.
Hier verbinden sich moderne Architektur, hochwertige Ausstattung und eine ruhige Lage zu einem harmonischen Gesamtbild, das Lebensqualität verspricht.
Ob als komfortabler Altersruhesitz, stilvolles Zuhause für zwei oder wertbeständige Kapitalanlage – dieses Objekt erfüllt viele Wünsche. Die barrierearme Bauweise sorgt für Sicherheit und Flexibilität in jeder Lebensphase, während die energiesparende Technik für niedrige Betriebskosten und ein gutes Gewissen sorgt.
Genießen Sie sonnige Stunden auf Ihrer Terrasse, entspannte Abende im offenen Wohnbereich und das gute Gefühl, in einem modernen, durchdachten Zuhause zu leben. Ein Haus, das mit seiner klaren Struktur, Funktionalität und Wärme überzeugt – ein echtes Zuhause mit Zukunft.
Haustyp: Doppelhaushälfte
Provisionspflichtig: ja
Provision: 3,57 (inkl. MwSt.)
Bad: Dusche, Fenster
Anzahl Schlafzimmer: 1
Anzahl Badezimmer: 1
Terrasse: 1
Barrierefrei: ja
Seniorengerecht: ja
Gäste-WC: ja
Anzahl der Parkflächen: 2
Anzahl der Parkflächen: 2 x Außenstellplatz
Baujahr: 2025
Verfügbar ab: kurzfristig oder nach VB
Bodenbelag: Fliesen
Zustand: Erstbezug
Befeuerungsart: Wärmepumpe
Energieausweistyp: Energieausweis liegt zur Besichtigung vor
Bei Abschluss eines Kaufvertrages wird eine Vermittlungs-/ Nachweisprovision in Höhe von 3,25 % inklusive 19 % Mehrwertsteuer auf den Kaufpreis vom Käufer fällig.
Die von uns gemachten Informationen beruhen auf Angaben des Verkäufers bzw. der Verkäuferin. Für die Richtigkeit und Vollständigkeit der Angaben kann keine Gewähr bzw. Haftung übernommen werden. Ein Zwischenverkauf und Irrtümer sind vorbehalten.
Wir weisen auf unsere Allgemeinen Geschäftsbedingungen hin. Durch weitere Inanspruchnahme unserer Leistungen erklären Sie die Kenntnis und Ihr Einverständnis.
Das könnte Ihnen auch gefallen

































































































