Rhede (Ems):
Idylle trifft auf Komfort – Ihr Traumhaus in Neurhede wartet auf Sie!
Objekt-Nr.: 8434#giEdYL

Stillvolles Haus in Naturnaher Lage

Hausansicht

Hausansicht

Hausansicht

Luftaufnahme

Luftaufnahme

Hausansicht

Hausansicht

Hausansicht

Terrasse

Garten

Hausansicht

Hausansicht

Garten Wohnhaus

Hausansicht

Garten Einliegerwohnung

Garten Wohnhaus

Garten Wohnhaus

Garten Wohnhaus

Garten Wohnhaus

Überdachte Terrasse

Überdachte Terrasse

Überdachte Terrasse

Überdachte Terrasse

Blick in die Natur

Wohnzimmer

Wohnzimmer

Wohnzimmer

31

Küche

Küche

Küche

Flur

Flur

Flur

Flur

Büro / Schlafen

Flur OG

Flur OG

Schlafzimmer

Schlafzimmer

Badezimmer

Badezimmer

Badezimmer

Gäste-WC

Erdgeschoss-1-1-1

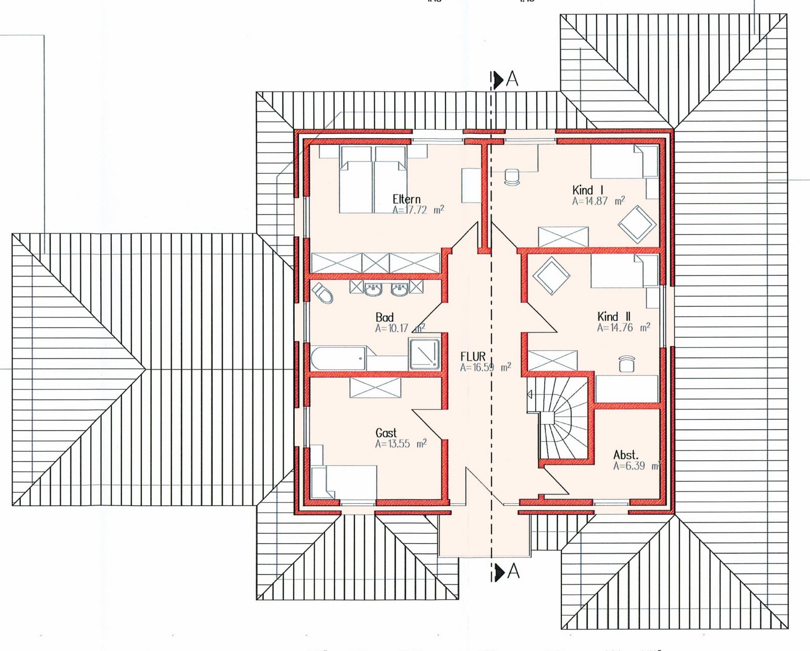
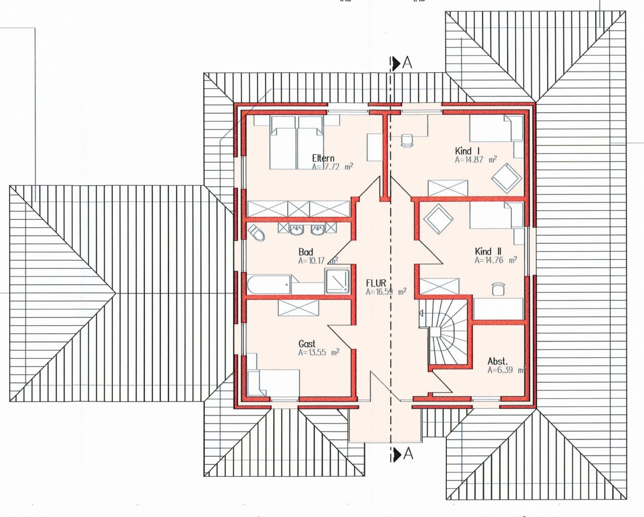
Obergeschoss-1-1

Schnitte
















































Preis:
579.000 €
Wohnfläche ca.:
291,45 m²
Grundstück ca.:
1.402 m²
Zimmeranzahl:
8
Provisionsfrei für Käufer! Stilvolles Einfamilienhaus mit ebenerdiger Einliegerwohnung in Neurhede
Willkommen in Ihrem neuen Zuhause! Dieses beeindruckende Einfamilienhaus mit einer ebenerdigen Einliegerwohnung befindet sich in Neurhede, direkt an der holländischen Grenze. Das im Jahr 2006 erbaute Anwesen bietet eine Gesamtwohnfläche von 291 m² und überzeugt durch eine hochwertige Ausstattung sowie ein großzügiges Grundstück von 1.402 m² mit idyllischem Blick in die Natur.
Die Raumaufteilung dieses Hauses ist optimal durchdacht. Das großzügige Wohnhaus bietet mit seinen zwei Vollgeschossen viel Platz für eine Familie. Die hellen und freundlichen Räume schaffen eine angenehme Wohnatmosphäre. Die Einliegerwohnung ist separat begehbar und ebenerdig gelegen – ideal für Gäste, Familienangehörige oder zur Vermietung. Vom Wohnhaus haben sie einen direkten Zugang zur Einliegerwohnung, sodass sich die Immobilie auch zum ebenerdigen Wohnen eignet.…
Dieses stilvolle und äußerst gepflegte Anwesen befindet sich in einem Top-Zustand – nahezu neuwertig! Genießen Sie die Ruhe und die Natur, ohne auf eine moderne und komfortable Ausstattung verzichten zu müssen.
Das Einfamilienhaus mit Einliegerwohnung überzeugt durch seine großzügige Wohnfläche, die durchdachte Raumaufteilung sowie die hochwertige Ausstattung. Es bietet ideale Wohnbedingungen für Familien, Mehrgenerationenhaushalte oder als Kapitalanlage mit Vermietungspotenzial.
Überzeugen Sie sich selbst von diesem einzigartigen Angebot und vereinbaren Sie noch heute einen Besichtigungstermin!
Haustyp: Einfamilienhaus
Provisionspflichtig: nein
Küche: Einbauküche
Bad: Dusche, Wanne, Fenster
Anzahl Schlafzimmer: 7
Anzahl Badezimmer: 2
Terrasse: 1
Einliegerwohnung: ja
Barrierefrei: ja
Gäste-WC: ja
Anzahl der Parkflächen: 4
Anzahl der Parkflächen: 4 x Außenstellplatz; 1 x Garage
Baujahr: 2006
Verfügbar ab: nach Vereinbarung
Bodenbelag: Fliesen, PVC, Laminat
Zustand: neuwertig
Befeuerungsart: Gas
Energieausweistyp: Bedarfsausweis - gültig vom 04.04.2022 bis 03.04.2032
Energieeffizienz-Klasse: C
Baujahr laut Energieausweis: 2006
Bei Abschluss eines Kaufvertrages wird eine Vermittlungs-/ Nachweisprovision in Höhe von 3,25 % inklusive 19 % Mehrwertsteuer auf den Kaufpreis vom Käufer fällig.
Die von uns gemachten Informationen beruhen auf Angaben des Verkäufers bzw. der Verkäuferin. Für die Richtigkeit und Vollständigkeit der Angaben kann keine Gewähr bzw. Haftung übernommen werden. Ein Zwischenverkauf und Irrtümer sind vorbehalten.
Wir weisen auf unsere Allgemeinen Geschäftsbedingungen hin. Durch weitere Inanspruchnahme unserer Leistungen erklären Sie die Kenntnis und Ihr Einverständnis.
Das könnte Ihnen auch gefallen
























































































