Rhede:
Käufer Provisionsfrei! Top Kapitalanlage in Rhede – 4 vermietete Wohnungen, fertiggestellt 2025
Objekt-Nr.: 8448#giEdYL

Hausansicht

Hausansicht

Hausansicht

Hausansicht

Hausansicht

Hausansicht

Wohnzimmer

Wohnzimmer

Schlafzimmer

IMG_4905

Badezimmer

Badezimmer

Schlafzimmer

Flur

Wohnzimmer

Badezimmer

Badezimmer

Badezimmer

Badezimmer

Wohnzimmer

Grundriss EG

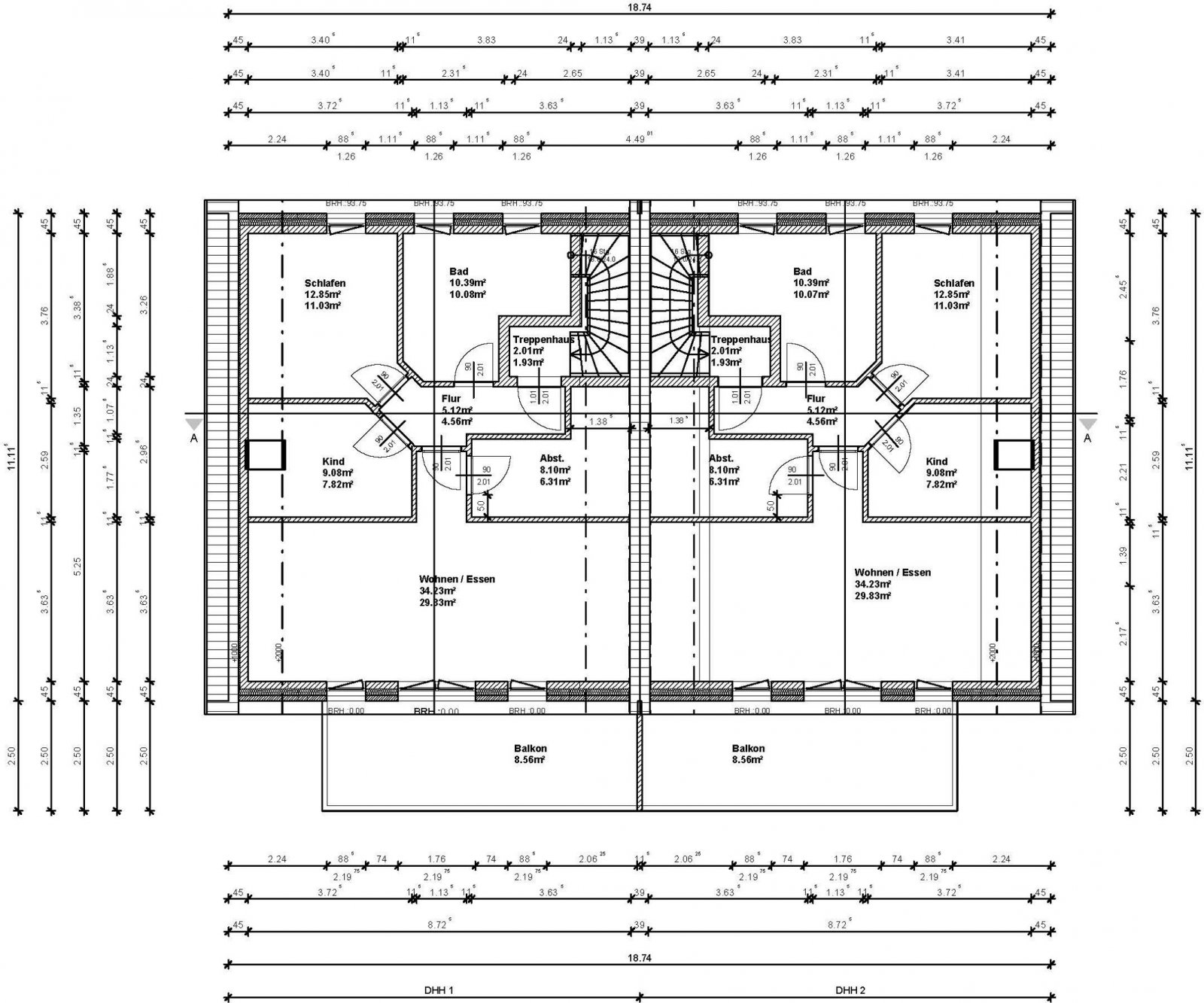
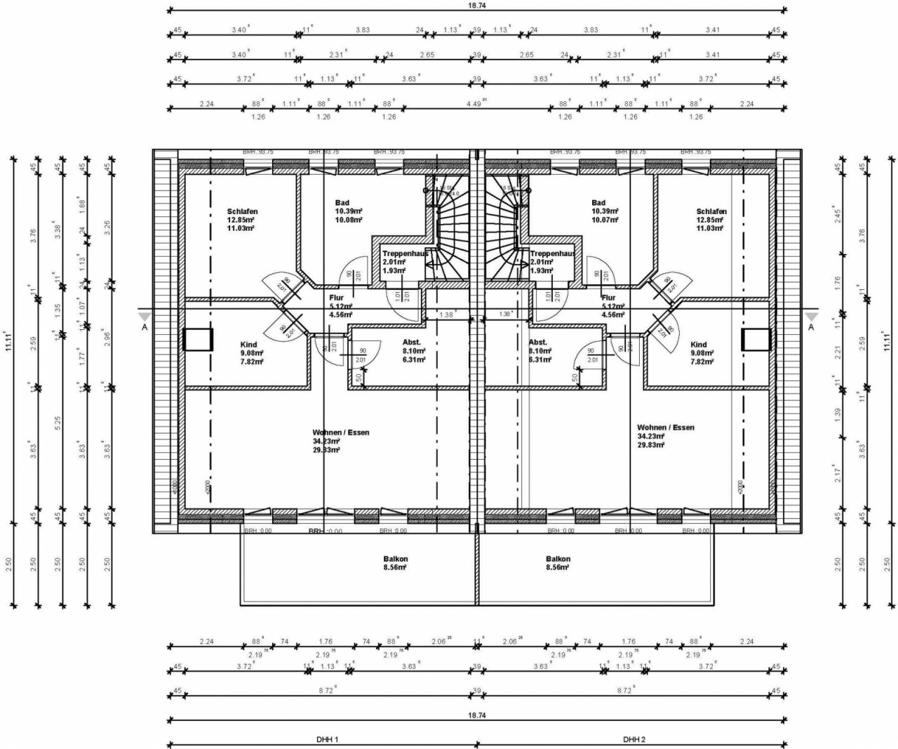
Grundriss DG

Schnitt























Preis:
1.060.000 €
Wohnfläche ca.:
339,78 m²
Grundstück ca.:
800 m²
Zimmeranzahl:
12
Modernes Mehrfamilienhaus in Rhede – Kapitalanlage mit sofortigen Mieteinnahmen
Provisionsfrei für den Käufer!
Dieses im Jahr 2025 fertiggestellte Mehrfamilienhaus in Rhede bietet eine einmalige Gelegenheit für Kapitalanleger, die auf der Suche nach einer attraktiven und sofort vermieteten Immobilie sind. Das Objekt überzeugt durch hochwertige Bauqualität, intelligente Grundrissgestaltung und lichtdurchflutete Räume – ein perfektes Zusammenspiel aus Funktionalität und Wohnkomfort.
Die insgesamt vier Wohnungen sind vollständig schlüsselfertig erstellt und bereits alle vermietet. Die Immobilie wurde mit größter Sorgfalt geplant und realisiert – inklusive Malerarbeiten, Gartenanlage und einer modernen Haustechnik, die höchsten Ansprüchen gerecht wird.
Das Mehrfamilienhaus ist perfekt als Kapitalanlage geeignet und verfügt über:
Erdgeschoss: 2 Wohnungen à ca. 89 m² mit teilüberdachter Gartenterrasse
Dachgeschoss: 2 Wohnungen à ca. 80 m² mit Balkon…
Jede Wohnung besticht durch eine durchdachte Raumaufteilung, bodentiefe Fenster und helle, lichtdurchflutete Räume. Der Wohn-/Essbereich ist offen zur Küche gestaltet, wodurch ein großzügiges Raumgefühl entsteht. Die bodentiefen Fensterelemente im Erdgeschoss führen direkt auf die teilweise überdachten Terrassen, während die Dachgeschosswohnungen jeweils einen Balkon besitzen.
Dank der intelligent angeordneten Fensterflächen gehen keine Stellmöglichkeiten für Möbel verloren – jede Wohnung bietet maximale Flexibilität bei der Inneneinrichtung.
Dieses Mehrfamilienhaus in Rhede ist die perfekte Kapitalanlage für Investoren, die auf der Suche nach einer modernen, vermieteten Immobilie mit sofortigen Einnahmen sind. Hochwertige Materialien, durchdachte Grundrisse, helle Wohnräume und gepflegte Außenanlagen machen das Objekt zu einem sicheren Investment.
Die Kombination aus ruhiger Lage, vollständiger Vermietung und moderner Ausstattung bietet sowohl langfristige Sicherheit als auch Wertsteigerungspotenzial.
Haustyp: Mehrfamilienhaus
Bad: Dusche, Wanne, Fenster
Anzahl Schlafzimmer: 8
Anzahl Badezimmer: 4
Balkon: 2
Terrasse: 1
Gäste-WC: ja
vermietet: ja
Anzahl der Parkflächen: 4
Anzahl der Parkflächen: 4 x Außenstellplatz
Baujahr: 2025
Verfügbar ab: nach Vereinbarung
Bodenbelag: Fliesen, PVC
Bei Abschluss eines Kaufvertrages wird eine Vermittlungs-/ Nachweisprovision in Höhe von 3,25 % inklusive 19 % Mehrwertsteuer auf den Kaufpreis vom Käufer fällig.
Die von uns gemachten Informationen beruhen auf Angaben des Verkäufers bzw. der Verkäuferin. Für die Richtigkeit und Vollständigkeit der Angaben kann keine Gewähr bzw. Haftung übernommen werden. Ein Zwischenverkauf und Irrtümer sind vorbehalten.
Wir weisen auf unsere Allgemeinen Geschäftsbedingungen hin. Durch weitere Inanspruchnahme unserer Leistungen erklären Sie die Kenntnis und Ihr Einverständnis.
Das könnte Ihnen auch gefallen






































































