Herzlake:
Neubau-Gigant der Extraklasse in erstklassige Wohnlage
Objekt-Nr.: 8032#giEdYL

1

2

3

4

5

6

20170926094221572 0001

20170926094221572 0002








Preis:
485.000 €
Wohnfläche ca.:
163,30 m²
Zimmeranzahl:
4
Provisionsfrei für den Käufer: Dieser exklusive und absolut durchdachte Neubaugigant kann auf einem Grundstück ihrer Wahl bzw. auf einem von ihnen zur Verfügung gestellten Grundstück im Emsland oder Ostfriesland erstellt werden. Der Kaufpreis bezieht sich auf das reine Wohnhaus das Grundstück ist nicht im Kaufpreis enthalten.…
Das Objekt besticht durch seine durchdachte und funktionell geplante Grundrissgestaltung, kurze Wege. Ein erster Blickfang ist der überdachte Eingangsbereich mit ansprechender Haustür (Sicherheitsschloss – Zentralschlüsselsystem für alle Außentüren, Gegensprechanlage). Im Dielen bzw. Eingangsbereich besteht die Möglichkeit eine nach Ihren Wünschen und Vorstellungen geplante Treppenanlage (Die Treppe ist nicht im Kaufpreis enthalten!) zu erstellen, die dann in das komplett ausbaufähige Dachgeschoss führt. Vom Dielenbereich aus gelangt man durch eine großzügige Glastür in den gemütlichen Wohn/Esszimmerbereich. Durch ein bodentiefes Schiebeelement gelangt man auf die überdachte Gartenterrasse, das zweite bodentiefe Schiebeelemente wurde intelligent angeordnet, perfekter Lichteinfall sowie ausreichend Stellflächen. Der Esszimmerbereich verfügt über eine doppelte Glastür zur Küche. Sie haben die Möglichkeit einen Kaminofen zu installieren, da ein Schornstein im Wohn-/Essbereich eingebaut wird. Die großzügige Wohnküche verfügt ebenfalls über ein bodentiefes Fensterelement, mit Zugang auf die überdachte Gartenterrasse. Die Decken im Erdgeschoss werden teilweise mit Einbauspots versehen, vereinzelt sind diese auch Dimmbar. Durch die zwei im Erdgeschoss befindlichen Schlafzimmer ist das barrierefreie Wohnen gewährleistet. Das großzügige, im Erdgeschoss befindliche Schlafzimmer, mit Ankleidebereich, verfügt über ein bodentiefes Fensterelement durch welches man eine weitere Gartenterrasse betritt. Des weiterem verfügt das Schlafzimmer über einen direkten Zugang in das direkt angrenzende Badezimmer, somit ist eine absolute Privatsphäre gewährleistet. Der gesamte Dachgeschossbereich ist ausbaufähig, ca. 110,84 m² Ausbaureserve. Bei dem Ausbau des Dachgeschoss können die Wünsche und Vorstellungen des Erwerbers berücksichtigt werden. Diese Walmdachvilla wird komplett schlüsselfertig inkl. Maler- & Gartenarbeiten erstellt. Auf eine hochwertige und einwandfreie Bauqualität wird geachtet und Wert gelegt.
Daten Energieausweis: In Vorbereitung
Grundlegend erstellen wir Gebäude nach BEG EH40 Standard
Bodenbeläge:
Der gesamte Wohnbereich wird mit einer großformatigen und einheitlichen Bodenfliese bestückt. Die Schlafzimmer werden mit hochwertigen Designbelag ausgelegt. Das exklusive Wohnhaus verfügt über eine Fußbodenheizung die separat von jedem Raum aus geregelt wird .
Küche:…
Der Küchenbereich wurde mit einem bodentiefen Fensterelement ausgestattet durch welches man die überdachte Terrasse betritt. Angrenzend an der Küche befindet sich ein großzügiger Hauswirtschaftsraum (Podest für Trockner und Waschmaschine). Des weiteren gelangt man von hieraus direkt die Garage. Gerne sind wir Ihnen auch bei der Wahl einer neuen Einbauküche behilflich, unser Küchenstudio wird Sie auch in diesem Punkt professionell beraten.
Bäder:
Das Top exklusive Badezimmer (on Suite) wird wie folgt ausgestattet: Wannenanlage, 2 Waschbecken mit passenden Badmöbeln, bodentiefe Dusche mit Glastür, Hänge WC, deckenhohe und sehr geschmackvolle Verfliesung. Hochwertige Elemente und Armaturen. Das Gäste Dusch/WC wird gleichwertig ausgestattet, Hänge WC, Waschbecken mit Badmöbel, bodentiefe Dusche mit Glastür, sowie geschmackvoller Verfliesung.
Garage:
Die großzügige Garage mit angrenzendem Geräteraum hat einen direkten Zugang ins Objekt sowie in den hinteren Gartenbereich. Es wird ein hochwertiges Elektro-Sektionaltor eingebaut.
Grundstück:
Das Gartengrundstück wird komplett angelegt. Die Freiflächen werden mit Rasensaat versehen. Die Grundstücksgrenzen werden mit einer Lebensbaumhecke eingefriedet. Die teilüberdachte Gartenterrasse wird großzügig gepflastert. Ein Pflasterweg läuft um das gesamte Objekt. Die Hoffläche wird ebenfalls gepflastert.
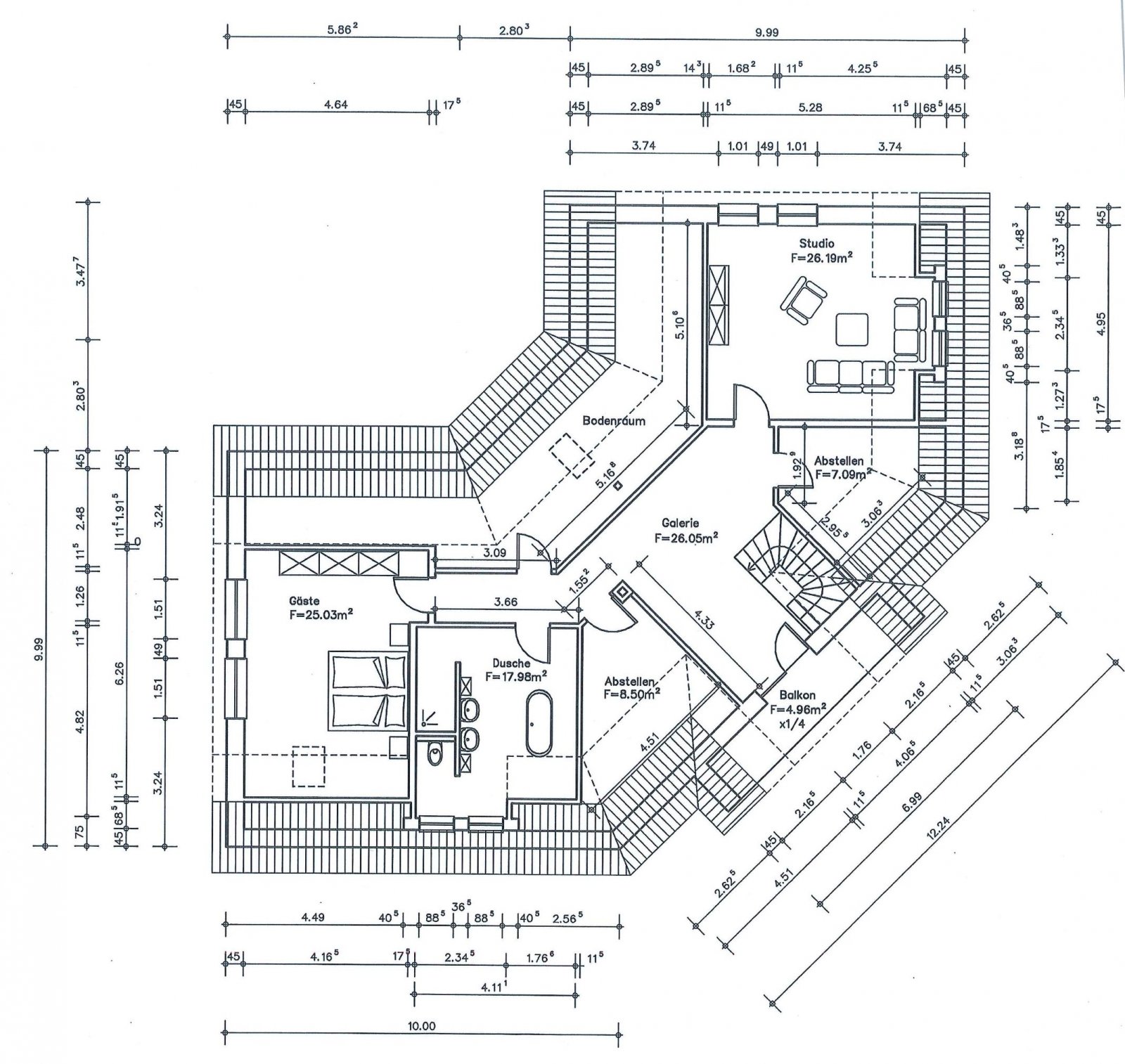
Erdgeschoss:
Diele ca. 20,04 m²
Gäste Dusch WC ca. 5,59 m²
Exkl. Bad ca. 14,70 m²
Küche ca. 25,58 m²
Wohn/Esszimmer ca. 43,50 m²
Schlafzimmer I ca. 18,90 m²
Ankleide ca. 11,83 m²
Schlafzimmer II ca. 12,92 m²
Hauswirtschaftsraum ca. 10,54 m²
Dachgeschoss:
Ausbaureserve ca. 110,84 m²
Diese Neubauvilla wird in einer hochwertigen Bauweise komplett schlüsselfertig nach BEG EH40 Standard erstellt. Klasse Optik, schicker Säuleneingangsbereich. Eine ausführliche Baubeschreibung zum Objekt sowie eine aussagekräftige Bauzeichnung können wir Ihnen gerne bei Bedarf per Mail oder auf dem Postweg zukommen lassen. Lassen Sie sich bei einer Besichtigung von uns inspirieren damit Ihr Traum vom Eigenheim wahr wird. Bei weiteren Fragen zu dieser Immobilie steht Ihnen das Gründer Immobilien Team aus Dörpen im Emsland jeder Zeit zur Verfügung!
Haustyp: Bungalow
Bad: Dusche, Wanne, Fenster
Anzahl Schlafzimmer: 2
Anzahl Badezimmer: 1
Barrierefrei: ja
Gäste-WC: ja
Anzahl der Parkflächen: 2
Anzahl der Parkflächen: 2 x Außenstellplatz; 1 x Garage
Baujahr: 2024
Verfügbar ab: nach Fertigstellung
Bodenbelag: Fliesen
Zustand: Erstbezug
Heizung: Fußboden
Befeuerungsart: Wärmepumpe
Energieausweistyp: Bedarfsausweis
Energieeffizienz-Klasse: A+
Baujahr laut Energieausweis: 2024
Bei Abschluss eines Kaufvertrages wird eine Vermittlungs-/ Nachweisprovision in Höhe von 3,25 % inklusive 19 % Mehrwertsteuer auf den Kaufpreis vom Käufer fällig.
Die von uns gemachten Informationen beruhen auf Angaben des Verkäufers bzw. der Verkäuferin. Für die Richtigkeit und Vollständigkeit der Angaben kann keine Gewähr bzw. Haftung übernommen werden. Ein Zwischenverkauf und Irrtümer sind vorbehalten.
Wir weisen auf unsere Allgemeinen Geschäftsbedingungen hin. Durch weitere Inanspruchnahme unserer Leistungen erklären Sie die Kenntnis und Ihr Einverständnis.
Das könnte Ihnen auch gefallen










































































































