Fürstenau:
Provisionsfrei: Moderne, energieeffiziente Neubau-DHH in Fürstenau – zukunftssicher wohnen
Object-Nr.: 8464#giEdYL

KfW40 - Neubau DHH

Hausansicht

Hausansicht

Hausansicht

Hausansicht

Hausansicht

Wohnzimmer

Wohnzimmer

Wohnzimmer

Küche

Küche

Wohnbereich

Flur EG

Flur EG

Hauswirtschaftsraum

Gäste-WC

Treppe zum OG

Flur OG

Flur OG

Schlafzimmer

Schlafzimmer

Schlafzimmer

Badezimmer

Badezimmer

Badezimmer

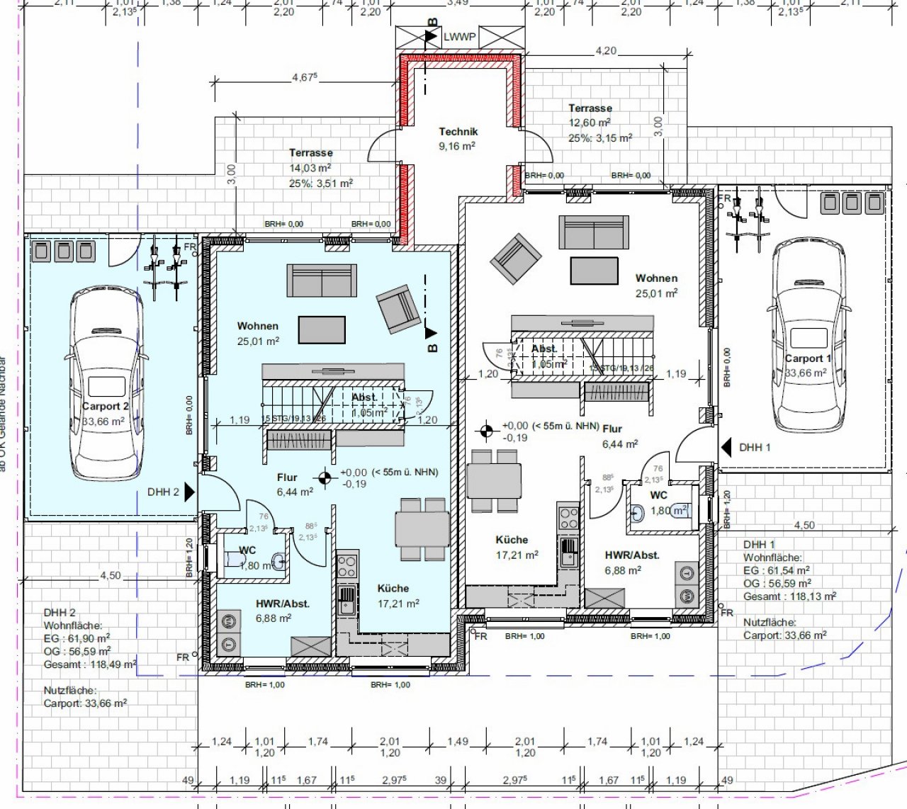
Grundriss EG

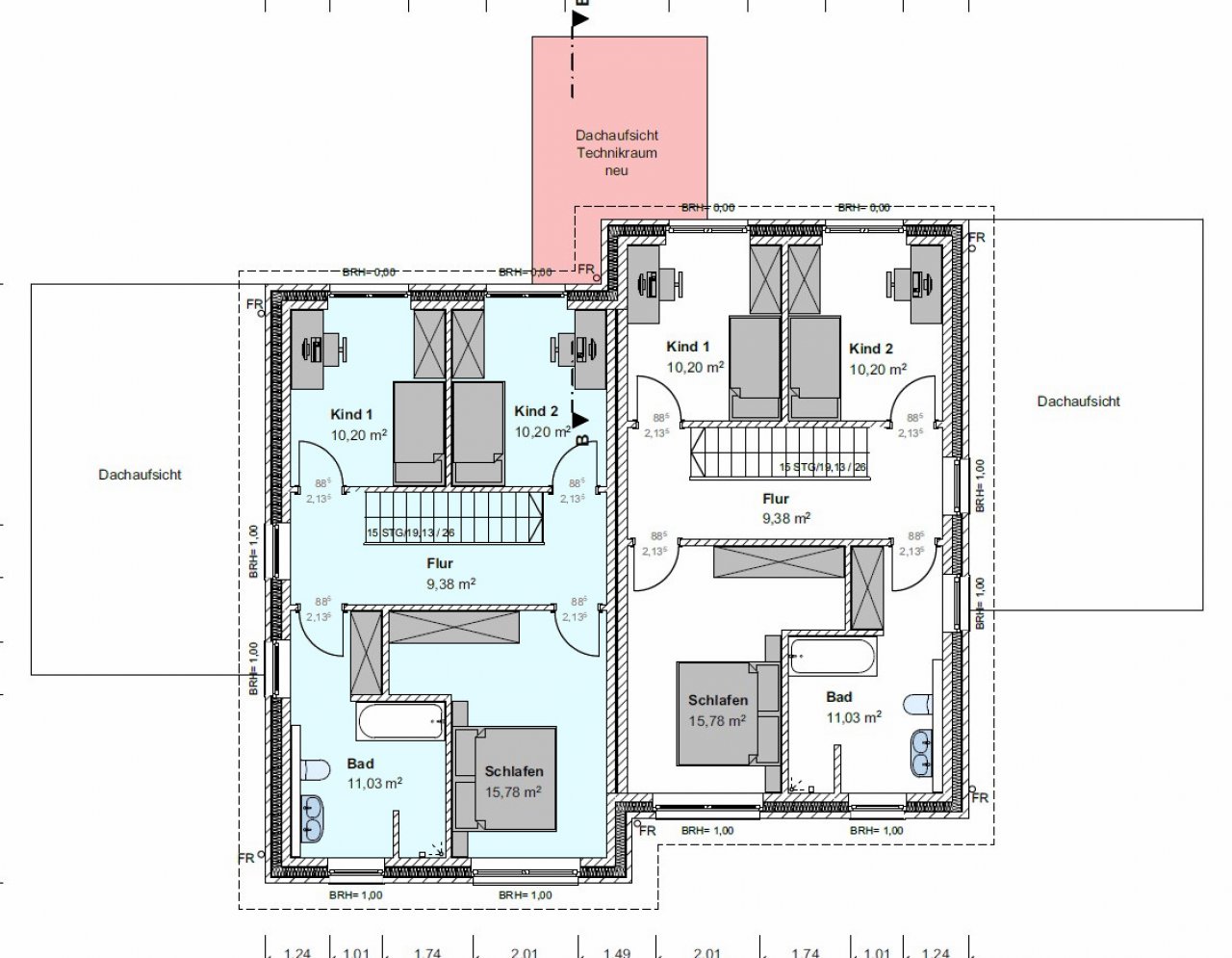
Grundriss DG



























Prijs:
365.000 €
Woonoppervlak ca.:
118,49 m2.
Grondstuk:
280 m2.
Aantal kamers:
4
Diese moderne Neubau-Doppelhaushälfte vereint zeitgemäße Architektur, energieeffiziente Bauweise und durchdachtes Wohnen zu einem perfekten Zuhause für Familien, Paare oder anspruchsvolle Eigennutzer. Mit einer Wohnfläche von ca. 118 m², zwei Vollgeschossen und einem Grundstück von ca. 340 m² bietet das Objekt genügend Raum zum Leben, Arbeiten und Wohlfühlen. Der Erstbezug im Jahr 2025 ermöglicht Ihnen die einmalige Chance, in ein rundum neues, hochwertig ausgestattetes Haus einzuziehen.
Finanzielle Vorteile – KfW-40 Standard & Förderprogramme 297/298
Dank der energieeffizienten Bauweise erfüllt das Objekt die Voraussetzungen für eine Förderung im Rahmen der Programme KfW 297 (für Eigennutzer) und KfW 298 (für Vermieter bzw. Kapitalanleger).
Diese Programme ermöglichen besonders zinsgünstige Darlehen für klimafreundliche Neubauten. Käufer profitieren durch die Übernahme eines bestehenden oder neu beantragten KfW-Darlehens von attraktiven Konditionen, deutlich reduzierten monatlichen Finanzierungskosten und einer langfristigen Planungssicherheit.
Zusätzlich wirkt sich das energetische Konzept positiv auf Ihre laufenden Betriebskosten aus – ein entscheidender Vorteil in Zeiten steigender Energiepreise.
Woningtype: Twee-onder-één-kap woning
Op provisiebasis: nee
Bad: Douche, Ligbad, Raam
Aantal slaapkamers: 3
Aantal badkamers: 1
Terras: 1
Gastentoilet: ja
Aantal parkeerplaatsen: 1
Aantal parkeerplaatsen: 1 x Parkeerplaats buiten
Bouwjaar: 2025
Beschikbaar vanaf: nach Fertigstellung
Vloerbedekking: Vloertegels, PVC
Toestand: Nieuw te betrekken
Verwarmingssoort: Warmtepomp
Type energiebewijs: certificaat vraag - geldig vanaf 08.04.2025 tot 07.04.2035
Energie-efficiëntieklasse: A+
Bouwjaar volgens energiecertificatie: 2025
Bei Abschluss eines Kaufvertrages wird eine Vermittlungs-/ Nachweisprovision in Höhe von 3,25 % inklusive 19 % Mehrwertsteuer auf den Kaufpreis vom Käufer fällig.
Die von uns gemachten Informationen beruhen auf Angaben des Verkäufers bzw. der Verkäuferin. Für die Richtigkeit und Vollständigkeit der Angaben kann keine Gewähr bzw. Haftung übernommen werden. Ein Zwischenverkauf und Irrtümer sind vorbehalten.
Wir weisen auf unsere Allgemeinen Geschäftsbedingungen hin. Durch weitere Inanspruchnahme unserer Leistungen erklären Sie die Kenntnis und Ihr Einverständnis.
Misschien vind je dit ook leuk
Ansprechender Neubau – Walmdachbungalow top Ausstattung

































































































