Walchum:
Ein Haus mit Geschichte – und Platz für Ihre Zukunft
Object-Nr.: 8450#giEdYL

Haus mit Geschichte

Hausansicht

Hausansicht

Hausansicht

Garten

Blick auf den Sommergarten

Hausansicht

Komplett eingefriedet

Garten

Garten

Holzhütte

Uneinsehbares Grundstück

Zentrale Lage

Garten

Esszimmer

Esszimmer

Esszimmer

Wohnzimmer

Küche

Küche

Küche

Küche

Treppenaufgang

Flur

Flur

Sommergarten mit Kamin

Sommergarten

Sommergarten

Esszimmer

Badezimmer

Badezimmer

Badezimmer

Badezimmer

Badezimmer

Schlafzimmer EG

Treppenaufgang

Schlafzimmer

Schlafzimmer

Schlafzimmer

Schlafzimmer

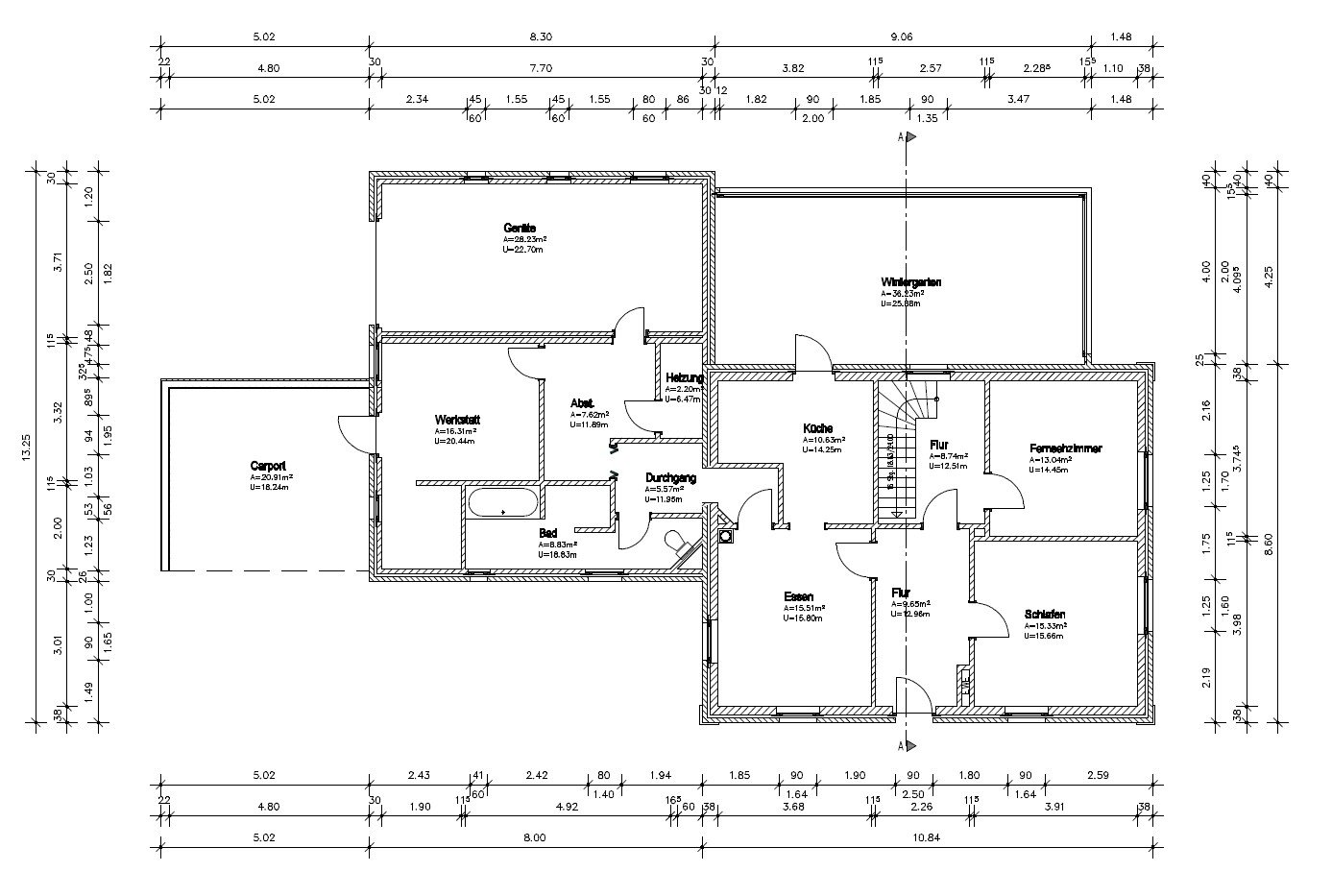
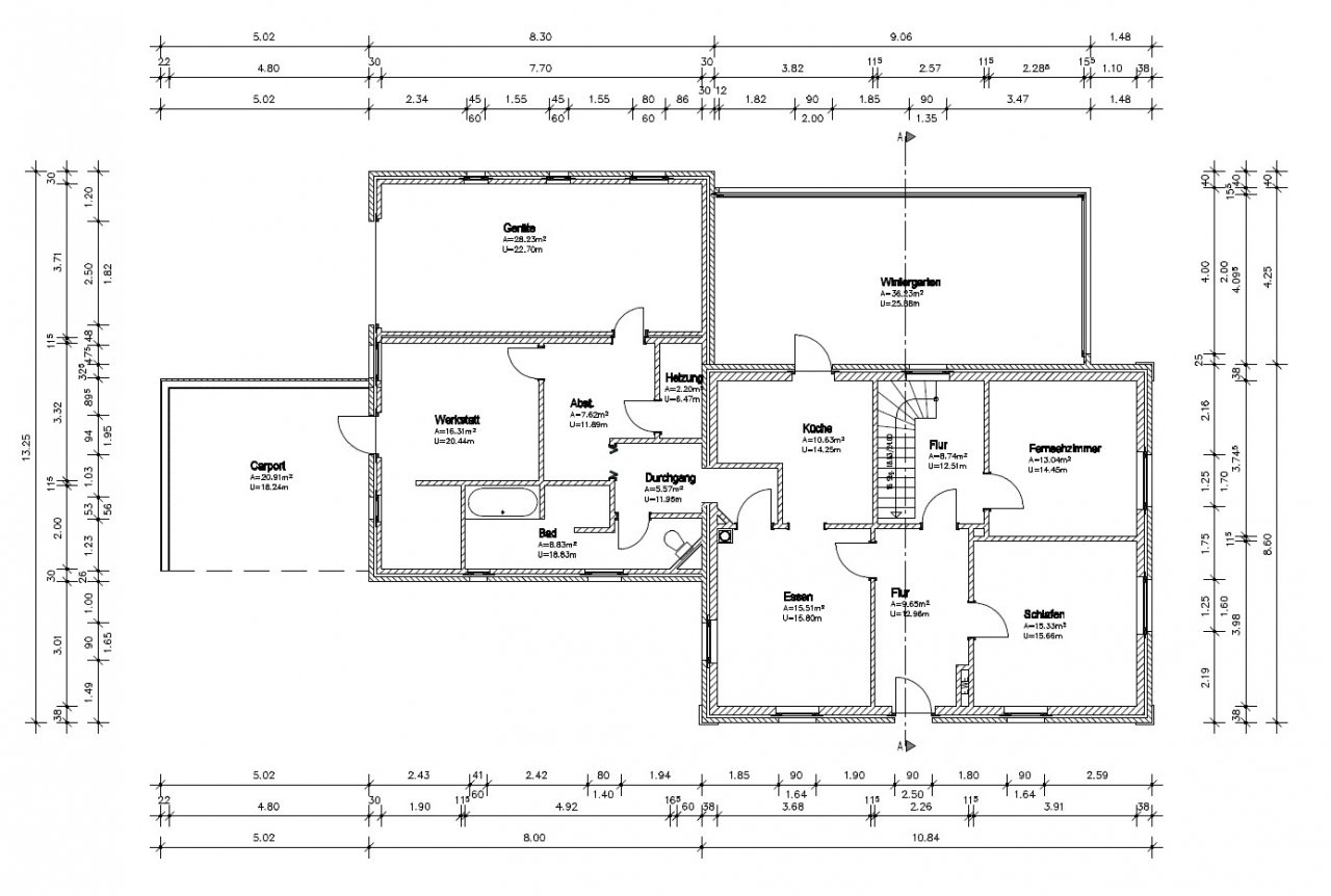
Grundriss EG

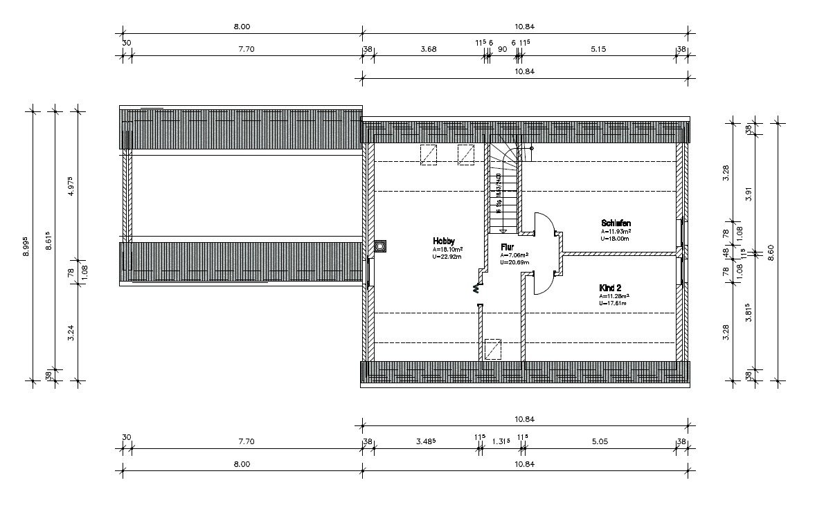
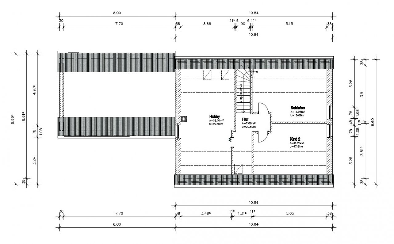
Grundriss DG










































Prijs:
148.000 €
Woonoppervlak ca.:
135 m2.
Grondstuk:
1.100 m2.
Aantal kamers:
6
Dieses geschichtsträchtige Einfamilienhaus aus dem Jahr 1920 wartet darauf, wieder zu neuem Leben erweckt zu werden! Ursprünglich als Lehrerhaus erbaut, strahlt es noch heute den besonderen Charakter vergangener Zeiten aus – ein echtes Liebhaberstück mit Herz und Geschichte.
Mit einer Wohnfläche von ca. 135 m² bietet das Haus ausreichend Platz für Familien, Paare oder handwerklich geschickte Menschen, die Freude daran haben, eine Immobilie nach ihren eigenen Vorstellungen zu gestalten.
Das Haus befindet sich in einem gebrauchsfähigen, aber renovierungsbedürftigen Zustand – die ideale Gelegenheit für kreative Köpfe und Handwerker, die den Charme alter Häuser zu schätzen wissen und diesen mit modernen Elementen kombinieren möchten.
Auf dem großzügigen Grundstück von ca. 1.100 m² finden Sie genügend Raum für Gartenliebhaber, Hobbygärtner oder einfach für die Familie, um die Ruhe und Natur zu genießen.
Dieses ehemalige Lehrerhaus bietet Ihnen eine einzigartige Gelegenheit, ein Stück Geschichte zu erwerben und daraus Ihr persönliches Traumhaus zu machen. Mit etwas handwerklichem Geschick und Liebe zum Detail lässt sich hier ein wahres Schmuckstück schaffen – ein Zuhause mit Seele, Charakter und großem Garten.
Ob als Familienhaus, Projekt für Handwerker oder als individuelles Liebhaberobjekt – hier steckt jede Menge Potenzial zu einem sehr attraktiven Schnäppchenpreis von nur 148.000 € (provisionsfrei für den Käufer).
Woningtype: Eengezinswoning
Op provisiebasis: nee
Keuken: Inbouwkeuken
Bad: Douche, Ligbad, Raam
Aantal slaapkamers: 4
Aantal badkamers: 1
Terras: 1
Open Haard: ja
Aantal parkeerplaatsen: 2
Aantal parkeerplaatsen: 2 x Parkeerplaats buiten
Bouwjaar: 1920
Beschikbaar vanaf: nach Vereinbarung
Vloerbedekking: Vloertegels, Laminaat
Toestand: Moet gerenoveerd worden
Verwarmingssoort: Gas
Type energiebewijs: Energiepas ligt ter inzage
Bei Abschluss eines Kaufvertrages wird eine Vermittlungs-/ Nachweisprovision in Höhe von 3,25 % inklusive 19 % Mehrwertsteuer auf den Kaufpreis vom Käufer fällig.
Die von uns gemachten Informationen beruhen auf Angaben des Verkäufers bzw. der Verkäuferin. Für die Richtigkeit und Vollständigkeit der Angaben kann keine Gewähr bzw. Haftung übernommen werden. Ein Zwischenverkauf und Irrtümer sind vorbehalten.
Wir weisen auf unsere Allgemeinen Geschäftsbedingungen hin. Durch weitere Inanspruchnahme unserer Leistungen erklären Sie die Kenntnis und Ihr Einverständnis.
Misschien vind je dit ook leuk
Moderner Edel-Bungalow in ruhiger Wohnlage!














































