Saterland:
Investition mit Zukunft – Gepflegtes Mehrfamilienhaus 14 WE in zentraler Lage
Object-Nr.: 8410#giEdYL

1-1

2

3

4

5

6

7

8

9

10

11

12

13

14

15

16

17

18

19

Grundriss EG 2002-1

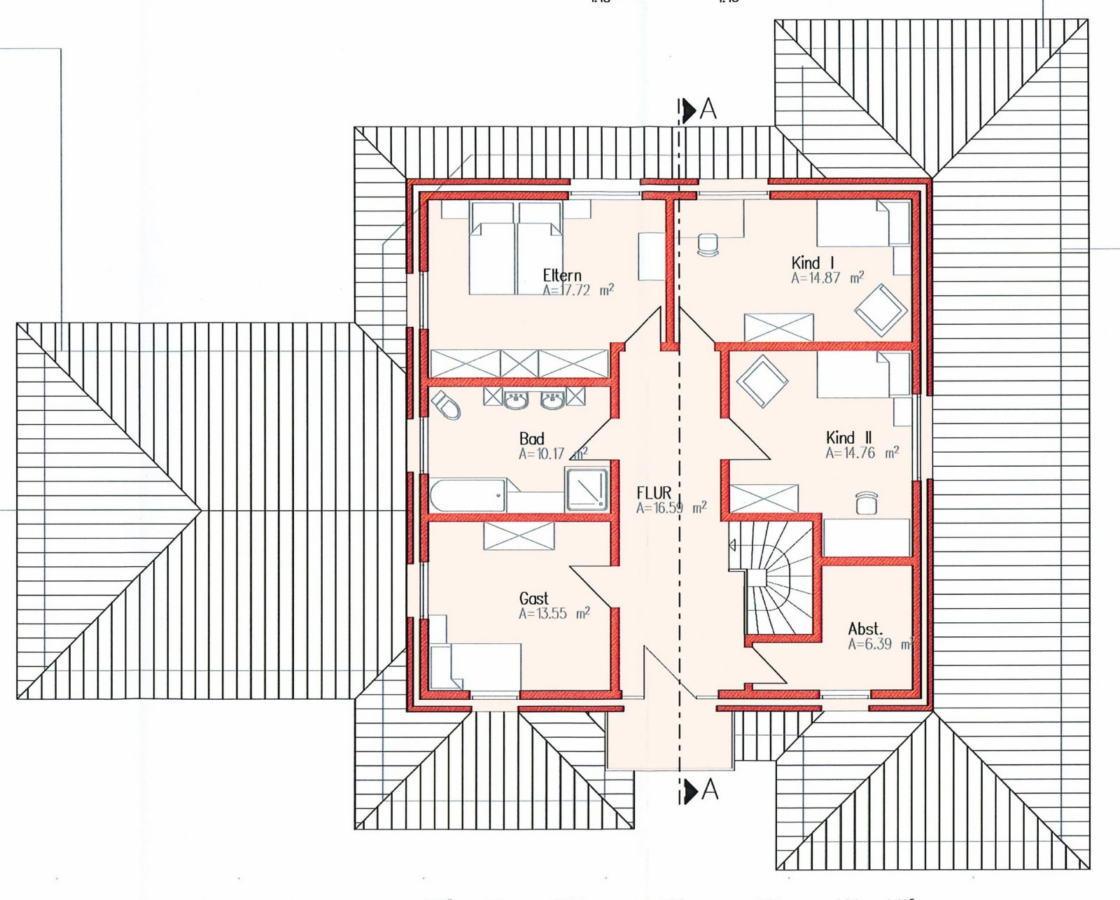
Grundriss DG 2002-1





















Prijs:
990.000 €
Woonoppervlak ca.:
697 m2.
Grondstuk:
1.500 m2.
Aantal kamers:
30
Provisionsfrei für Käufer – Attraktives Renditeobjekt mit 14 Wohneinheiten in Sedelsberg
Dieses gepflegte Mehrfamilienhaus mit insgesamt 14 Wohneinheiten präsentiert sich als hervorragendes Renditeobjekt in ruhiger, aber dennoch zentraler Lage von Sedelsberg. Die Immobilie wurde im Jahr 1996 errichtet und überzeugt durch eine solide Bauweise, eine gute Vermietbarkeit sowie eine stabile Ertragslage.
Die zentrale Wohnsiedlungslage bietet kurze Wege zu allen Einrichtungen des täglichen Bedarfs: Einkaufsmöglichkeiten, Fachgeschäfte, Supermärkte, Post, Banken, Ärzte und Apotheken sind bequem fußläufig erreichbar. Damit erfreuen sich die Wohnungen einer konstant hohen Nachfrage und bieten dem künftigen Eigentümer langfristige Mietsicherheit.
Aufteilung der Wohnanlage
Die Wohnanlage gliedert sich in 9 Erdgeschosswohnungen sowie 5 Dachgeschosswohnungen.
- Erdgeschosswohnungen: Wohnflächen zwischen ca. 47 m² und 62 m²
- Dachgeschosswohnungen: Wohnflächen zwischen ca. 52 m² und 57 m²…
Jede Wohnung verfügt über einen praktischen Grundriss mit Flur, Badezimmer, Küche, Wohnzimmer, Schlafzimmer sowie einem Abstellraum. Die Raumaufteilung ist durchdacht und bietet den Mietern eine komfortable Wohnqualität.
Grundstück und Außenanlagen
Das Grundstück ist pflegeleicht gestaltet und bietet dennoch viel Potenzial für individuelle Gestaltungsmöglichkeiten. Der großzügig gepflasterte Frontbereich sorgt für eine ordentliche Erscheinung, während die begrünten Freiflächen mit Rasenanlage den Bewohnern ein angenehmes Umfeld bieten.
Wirtschaftliche Kennzahlen
- Jahresnettokaltmiete: ca. 54.620,- €
- Auslastung: Sehr gut, hohe Vermietungssicherheit
- Gesamtzustand: Gepflegt, kein akuter Renovierungsstau
Ein Energieausweis befindet sich derzeit in Vorbereitung und wird zeitnah nachgereicht.
Dieses Mehrfamilienhaus bietet Kapitalanlegern die Möglichkeit, eine renditestarke und zugleich gepflegte Immobilie in einer nachgefragten Lage von Sedelsberg zu erwerben. Dank der durchdachten Aufteilung, der soliden Bauweise sowie der attraktiven Infrastruktur ist eine dauerhafte Vermietbarkeit sichergestellt.
Das Objekt eignet sich ideal als langfristige Kapitalanlage und überzeugt durch seine stabile Ertragslage, die provisionsfreie Kaufabwicklung sowie die gute Lage im Ortskern von Sedelsberg.
Für weitere Informationen oder zur Vereinbarung eines Besichtigungstermins steht Ihnen das Team von Gründer Immobilien aus Dörpen jederzeit gern zur Verfügung.
Woningtype: Meergezinswoning
Op provisiebasis: nee
Keuken: Inbouwkeuken
Aantal slaapkamers: 14
Aantal badkamers: 14
verhuurd: ja
Bouwjaar: 1996
Beschikbaar vanaf: Nach Vereinbarung
Vloerbedekking: Vloertegels, Laminaat
Bei Abschluss eines Kaufvertrages wird eine Vermittlungs-/ Nachweisprovision in Höhe von 3,25 % inklusive 19 % Mehrwertsteuer auf den Kaufpreis vom Käufer fällig.
Die von uns gemachten Informationen beruhen auf Angaben des Verkäufers bzw. der Verkäuferin. Für die Richtigkeit und Vollständigkeit der Angaben kann keine Gewähr bzw. Haftung übernommen werden. Ein Zwischenverkauf und Irrtümer sind vorbehalten.
Wir weisen auf unsere Allgemeinen Geschäftsbedingungen hin. Durch weitere Inanspruchnahme unserer Leistungen erklären Sie die Kenntnis und Ihr Einverständnis.
Misschien vind je dit ook leuk
























































































