Lathen:
Wohlfühlen leicht gemacht – moderne Bungalow-DHH in Toplage von Lathen
Object-Nr.: 8406#giEdYL

Hausansicht

Hausansicht

Hausansicht

Hausansicht

Hausansicht

Hausansicht

Garten

Terrasse

Terrasse

Terrasse

Garten

Terrasse

Terrasse

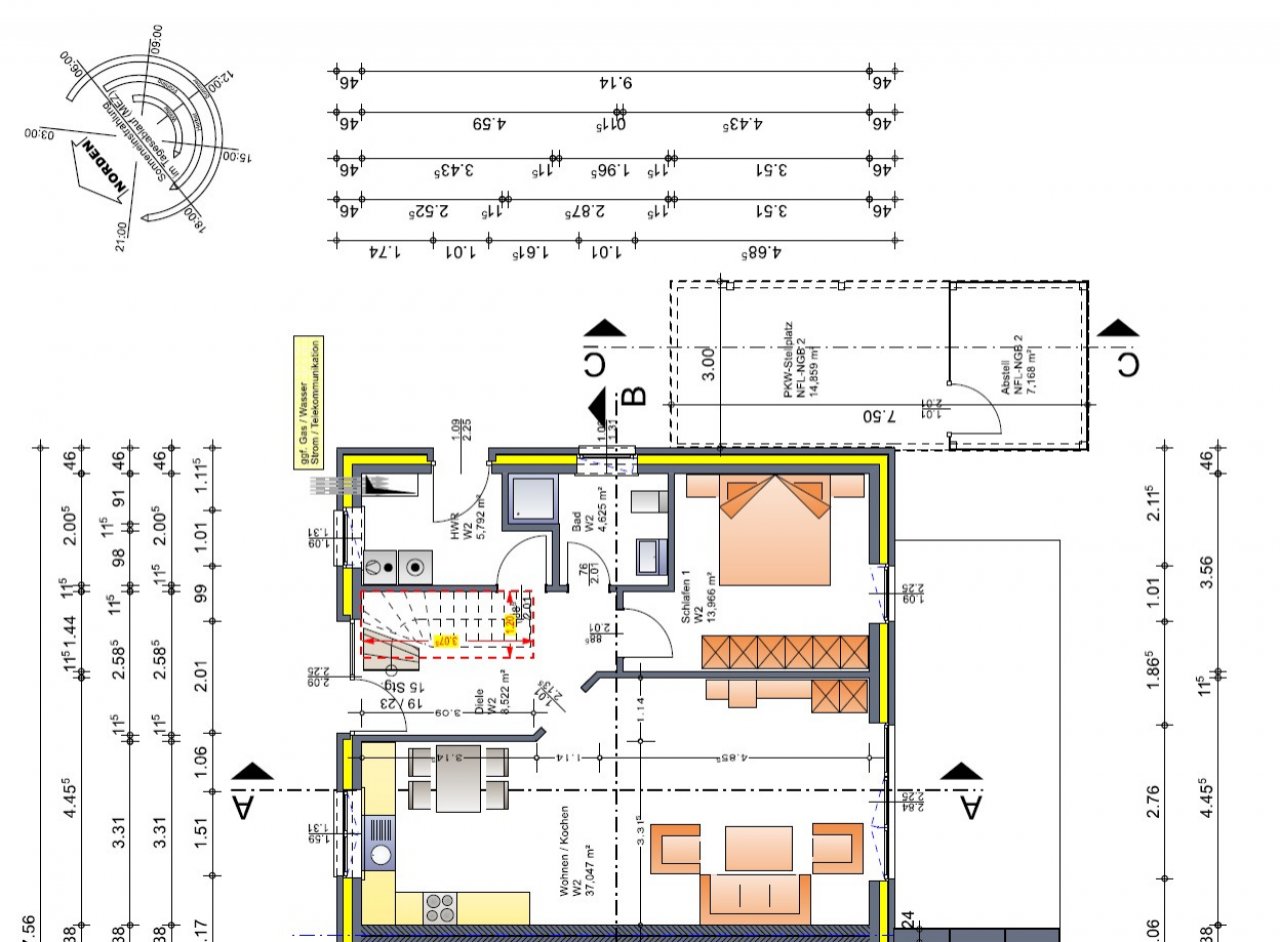
Grundriss EG

Grundriss OG

Schnitt A-A

Schnitt B-B

















Prijs:
279.000 €
Woonoppervlak ca.:
111,45 m2.
Grondstuk:
381 m2.
Aantal kamers:
4
Provisionsfrei für Käufer: Zum Verkauf steht eine Doppelhaushälfte in Form eines Walmdachbungalows, die im Jahr 2015 in massiver Bauweise errichtet wurde. Die Immobilie befindet sich in einer ruhigen und naturnahen Wohnlage von Lathen und überzeugt durch ihre moderne Architektur und ihre durchdachte Raumaufteilung. Mit einer Wohnfläche von ca. 111 m² auf einem ca. 381 m² großen Grundstück bietet das Haus ein komfortables Zuhause für Paare, kleine Familien oder Senioren, die ebenerdiges Wohnen in angenehmer Umgebung schätzen.
Das Haus verfügt über eine durchgängige Fußbodenheizung in allen Wohnräumen, die von einer sparsamen Gas-Zentralheizung gespeist wird. Große, bodentiefe Fensterelemente im Wohnzimmer und Schlafzimmer schaffen eine helle, freundliche Atmosphäre und ermöglichen einen direkten Zugang auf das rückwärtige Grundstück. Dieser Gartenbereich ist uneinsehbar und bietet maximale Privatsphäre – ideal zum Entspannen, Gärtnern oder geselligen Beisammensein.…
Der Wohnbereich ist offen gehalten und verbindet Wohnen, Essen und Küche zu einer großzügigen Einheit. Der durchgängig verlegte, einheitliche Designboden (Domesticbelag) sorgt für eine moderne und harmonische Optik im gesamten Haus. Elektrische Rollläden an allen Fenstern bieten zusätzlichen Komfort und Sicherheit.
Ein Carport mit integriertem Geräteraum steht direkt auf dem Grundstück zur Verfügung und rundet das Angebot ab. Hier finden nicht nur Ihr Fahrzeug, sondern auch Gartengeräte oder Fahrräder einen geschützten Platz.
Dank des Schlafzimmers und Duschbads im Erdgeschoss ermöglicht das Haus komfortables Wohnen auf einer Ebene.
Der vordere Bereich des Grundstücks öffnet sich zu einem angrenzenden Biotop und ermöglicht einen freien, unverbaubaren Blick in die Natur – ein besonderes Merkmal, das Seltenheitswert hat.
Aktuell ist die Immobilie vermietet und erzielt eine monatliche Kaltmiete in Höhe von 780 €, was sie auch für Kapitalanleger interessant macht.
Woningtype: Twee-onder-één-kap woning
Aantal etages: 1
Op provisiebasis: nee
Bad: Douche, Ligbad, Raam
Aantal slaapkamers: 3
Aantal badkamers: 2
Terras: 1
verhuurd: ja
Aantal parkeerplaatsen: 2
Aantal parkeerplaatsen: 2 x Parkeerplaats buiten
Bouwjaar: 2015
Beschikbaar vanaf: Nach Vereinbarung
Vloerbedekking: Vloertegels, PVC
Toestand: Goed onderhouden
Verwarming: Vloer
Verwarmingssoort: Gas
Type energiebewijs: Energiepas ligt ter inzage
Bei Abschluss eines Kaufvertrages wird eine Vermittlungs-/ Nachweisprovision in Höhe von 3,25 % inklusive 19 % Mehrwertsteuer auf den Kaufpreis vom Käufer fällig.
Die von uns gemachten Informationen beruhen auf Angaben des Verkäufers bzw. der Verkäuferin. Für die Richtigkeit und Vollständigkeit der Angaben kann keine Gewähr bzw. Haftung übernommen werden. Ein Zwischenverkauf und Irrtümer sind vorbehalten.
Wir weisen auf unsere Allgemeinen Geschäftsbedingungen hin. Durch weitere Inanspruchnahme unserer Leistungen erklären Sie die Kenntnis und Ihr Einverständnis.
Misschien vind je dit ook leuk











































































