Dörpen:
Qualität trifft Preis - Ihr neues Zuhause endlich greifbar!
Object-Nr.: 8276#giEdYL

8073-1

EXPOS-23-46S7K

EXPOS-23-46.-2JPG

EXPOS-23-44

EXPOS-23-463

Ansicht vorne

Ansicht rechts

Ansicht Links

Ansicht hinten 1

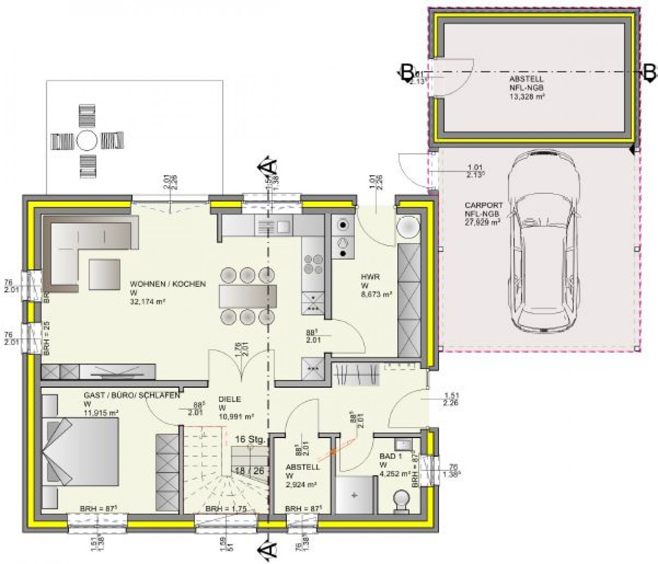
EG-Grundriss

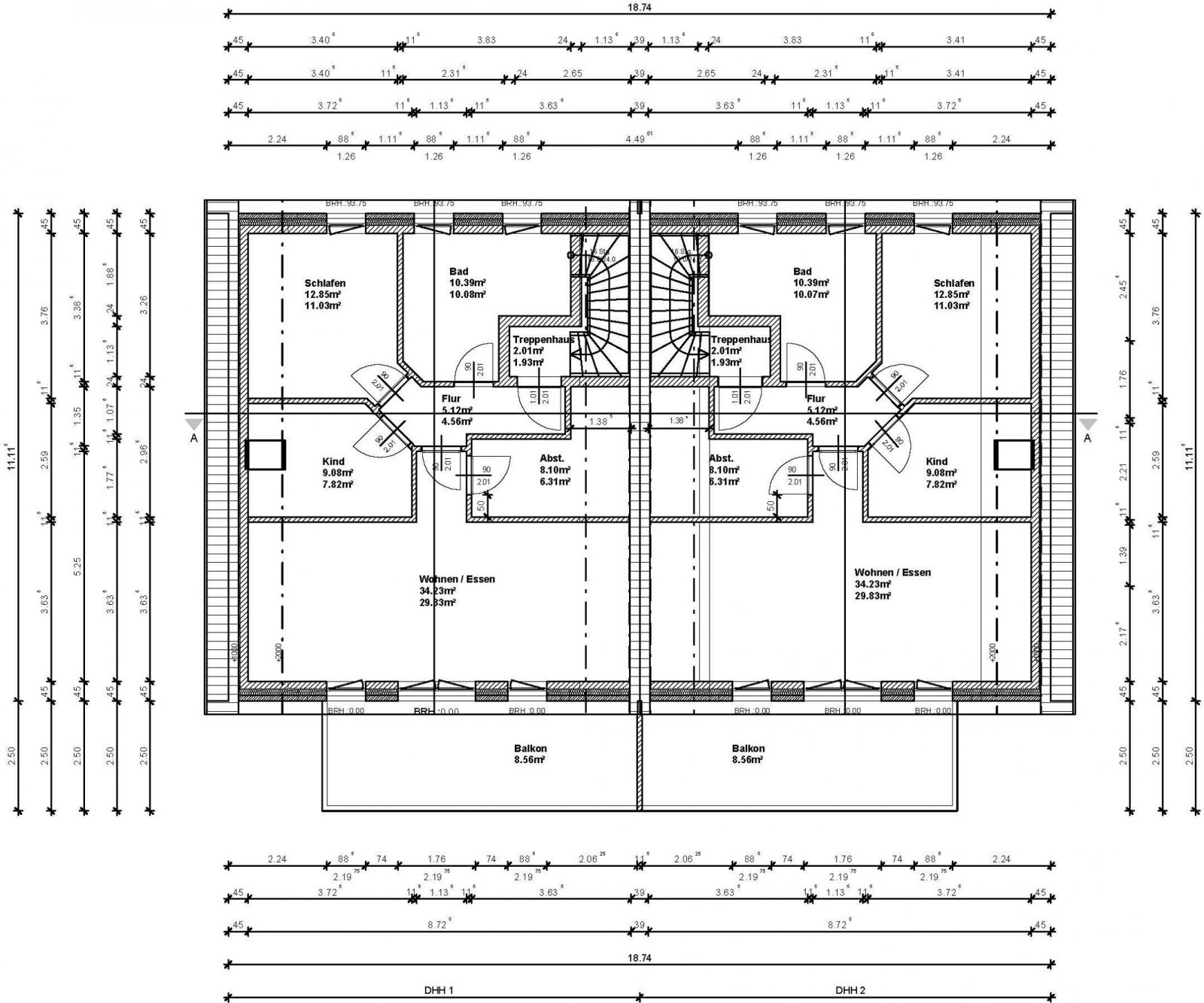
DG-Grundriss

Schnitt












Prijs:
280.000 €
Woonoppervlak ca.:
130 m2.
Aantal kamers:
5
Exklusives Immobilienangebot – Neubau Einfamilienhaus mit durchdachter Raumaufteilung - ohne Grundstück
- Provisionsfrei für Käufer!
Wir freuen uns, Ihnen ein exklusives Neubauangebot präsentieren zu dürfen: ein hochwertiges Einfamilienhaus im Neubau mit einer beeindruckenden Wohnfläche von 130 m². Diese Immobilie zeichnet sich durch moderne Architektur, energieeffiziente Technologien und eine durchdachte Raumaufteilung aus.
Eckdaten im Überblick:
Objekttyp: Einfamilienhaus (Neubau) ohne Grundstück
Wohnfläche: 130 m²
Heizung: Luftwärmepumpe
Schlafzimmer: 4
Besonderheiten: Durchdachte Raumaufteilung, Carport möglich
Erstellung: Durch ortsansässige Fachfirmen
Bezugsfertig: Ja, inklusive schlüsselfertiger Übergabe
Sie sind handwerklich begabt oder haben den Wunsch Eigenleistungen zu erbringen um Geld zu sparen? Kein Problem!
Wir bieten Ihnen bei diesem Haus die Möglichkeit einzelne Gewerke aus dem Leistungsumfang rauszunehmen.
Nicht enthalten in diesem Angebot ist das Grundstück, und die Gartengestaltung. Die Hausanschlüsse (Wasser, Strom und Telekommunikation) müssen kostenpflichtig durch den Auftraggeber bei den zuständigen Versorgern beantragt werden. Hierbei sind wir Ihnen gerne behilflich.
Sie haben noch weitere Fragen? Gerne übersenden wir Ihnen auf Anfrage eine detaillierte Baubeschreibung zum Objekt , oder rufen sie uns an - wir helfen Ihnen gerne weiter.
Woningtype: Eengezinswoning
Op provisiebasis: nee
Nuttig oppervlak.: 41 m2.
Bad: Douche, Ligbad, Raam
Aantal slaapkamers: 4
Aantal badkamers: 2
Gastentoilet: ja
Beschikbaar vanaf: nach Fertigstellung Bauzeit ca. 9 Monate
Vloerbedekking: Vloertegels, PVC
Toestand: Nieuw te betrekken
Verwarmingssoort: Warmtepomp
Type energiebewijs: Energiepas ligt ter inzage
Bei Abschluss eines Kaufvertrages wird eine Vermittlungs-/ Nachweisprovision in Höhe von 3,25 % inklusive 19 % Mehrwertsteuer auf den Kaufpreis vom Käufer fällig.
Die von uns gemachten Informationen beruhen auf Angaben des Verkäufers bzw. der Verkäuferin. Für die Richtigkeit und Vollständigkeit der Angaben kann keine Gewähr bzw. Haftung übernommen werden. Ein Zwischenverkauf und Irrtümer sind vorbehalten.
Wir weisen auf unsere Allgemeinen Geschäftsbedingungen hin. Durch weitere Inanspruchnahme unserer Leistungen erklären Sie die Kenntnis und Ihr Einverständnis.
Misschien vind je dit ook leuk











































































