Haselünne:
Hochwertig ausgestattete barrierefreie Neubau – Doppelhaushälfte
Object-Nr.: 8028#giEdYL

Ansicht I

Ansicht II

EG

DG

EG

DG






Prijs:
396.000 €
Woonoppervlak ca.:
144,60 m2.
Aantal kamers:
5
Provisionsfrei für den Käufer: Diese exklusive Neubau Doppelhaushälfte kann auf einem Grundstück ihrer Wahl bzw. auf einem von ihnen zur Verfügung gestellten Grundstück im Emsland oder Ostfriesland erstellt werden. Der Kaufpreis bezieht sich auf das reine Wohnhaus das Grundstück ist nicht im Kaufpreis enthalten.
Das Objekt wird komplett barrierefrei erstellt, keine Stufen im Erdgeschoss! Die Raumaufteilung ist durchdacht und verfügt durch intelligent angeordnete Fensterflächen über einen klasse Lichteinfall in alle Räume. Im Eingangs- bzw. Dielenbereich befindet sich eine geschmackvolle Treppenanlage, welche in den Gästebereich im Dachgeschoss führt. Der Dachgeschossbereich könnte als Gästebereich genutzt werden. Hier wird des weiteren ein zusätzliches Badezimmer installiert. Das Wohn/Esszimmer wird mit Boden tiefen Fensterelementen bestückt. Diese führen auf die großzügige Gartenterrasse. Im Hauswirtschaftsraum befindet sich eine Seiteneingangstür. Alle Fenster werden mit Elektro - Rollos ausgestattet.
Diese Doppelhaushälfte wird komplett schlüsselfertig inkl. Maler- & Gartenarbeiten erstellt. Auf eine hochwertige und einwandfreie Bauqualität wird geachtet.
Daten Energieausweis: In Vorbereitung
Grundlegend erstellen wir Gebäude nach BEG EH40 Standard
Bodenbeläge:
Der gesamte Wohnbereich wird mit Fliesenböden versehen, die Schlafzimmer werden mit einem Domesticboden versehen. Alle Räume erhalten eine Fußbodenheizung.
Küche:
Gerne sind wir Ihnen auch bei der Wahl einer neuen Einbauküche behilflich. Unser Küchen - Studio wird Sie auch in diesem Punkt professionell beraten.
Bäder:
Es werden zwei barrierefreie, exklusive Bäder sowie ein Gäste WC ins Objekt installiert. Das Badezimmer im Erdgeschoss wird wie folgt bestückt:…
EG Bad: Boden tiefe Dusche (1,00+1,00m, Ablage und Sitzfläche, gemauertes Seitenteil) mit hochwertiger Glastür, Hänge WC (alten gerecht ca. 0,10m höher), Handtuchheizkörper, Waschtisch mit Halbsäule (kleine Ablagefläche), Decken hohe und vom Erwerber selbst bestimmte Verfliesung, hochwertige Elemente und Armaturen. Das Bad im Dachgeschoss wird identisch bestückt und ausgestattet und erhält zusätzlich eine Badewanne.
Garage:
Die Doppelhaushälfte verfügt über ein großzügiges Carport mit angrenzendem Geräteraum.
Grundstück:
Das Gartengrundstück wird komplett angelegt. Die Freiflächen werden mit Rasensaat versehen. Die Hoffläche (PKW - Einstellplatz, Eingangsbereich) und die Gartenterrasse werden großzügig bepflastert. Ein ca. 70cm breiter Pflasterweg läuft rund um das Objekt. Die Grundstücksgrenzen werden mit einer Lebensbaumhecke eingefriedet.
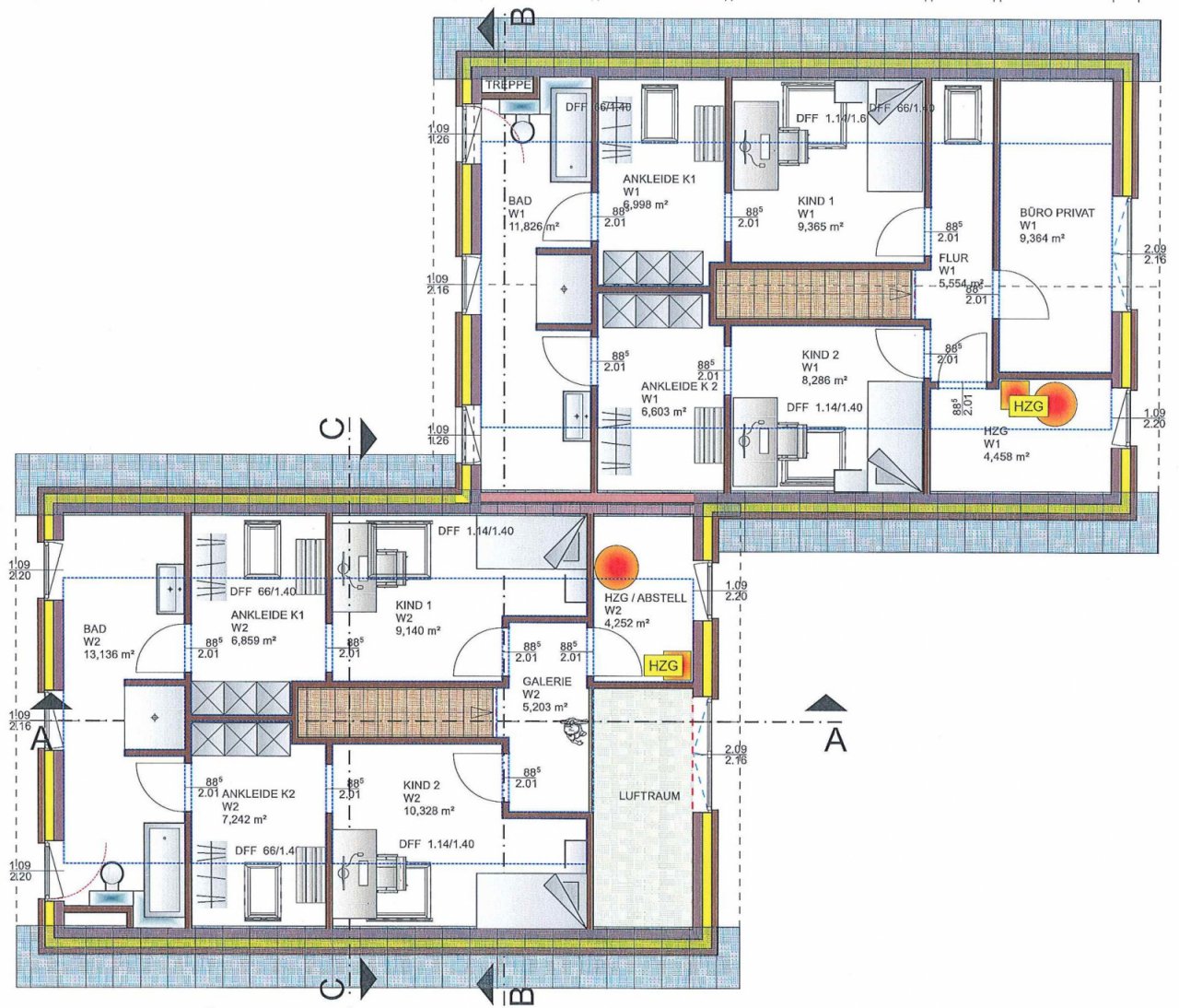
Erdgeschoss:
Diele ca. 8,48 m²
Gäste WC ca. 2,06 m²
Dusche WC ca. 5,73 m²
Küche/Wohn/Esszimmer ca. 36,39 m²
Schlafen I ca. 9,48 m²
Ankleide I ca. 7,48 m²
Hauswirtschaftsraum ca. 7,12 m²
Besenkammer ca. 1,43 m²
Dachgeschoss:
Flur ca. 5,55 m²
Bad Dusche WC ca. 11,82 m²
Schlafen II ca. 9,36 m²
Ankleide II ca. 6,99 m²
Schlafen III ca. 8,26 m²
Ankleide III ca. 6,60 m²
Schlafen IV/Büro ca. 9,36 m²
Heizungsraum ca. 4,45 m²
Hochwertig ausgestattete Neubau- Doppelhaushälfte schlüsselfertig nach BEG EH40 Standard. Wohnen auf einer Ebene möglich. Der Dachgeschossbereich könnte als Gästebereich genutzt werden. Eine ausführliche Baubeschreibung zum Objekt sowie eine aussagekräftige Bauzeichnung können wir Ihnen gerne bei Bedarf per Mail oder auf dem Postweg zukommen lassen. Bei weiteren Fragen steht Ihnen das Gründer-Immobilienmakler Team aus Dörpen im Emsland jeder Zeit zur Verfügung!
Woningtype: Twee-onder-één-kap woning
Bad: Douche, Ligbad, Raam
Aantal slaapkamers: 4
Aantal badkamers: 2
Gastentoilet: ja
Aantal parkeerplaatsen: 1
Aantal parkeerplaatsen: 1 x Parkeerplaats buiten
Bouwjaar: 2024
Beschikbaar vanaf: nach Fertigstellung
Vloerbedekking: Vloertegels, Laminaat
Toestand: Nieuw te betrekken
Verwarming: Vloer
Verwarmingssoort: Warmtepomp
Type energiebewijs: certificaat vraag
Energie-efficiëntieklasse: A+
Bouwjaar volgens energiecertificatie: 2024
Bei Abschluss eines Kaufvertrages wird eine Vermittlungs-/ Nachweisprovision in Höhe von 3,25 % inklusive 19 % Mehrwertsteuer auf den Kaufpreis vom Käufer fällig.
Die von uns gemachten Informationen beruhen auf Angaben des Verkäufers bzw. der Verkäuferin. Für die Richtigkeit und Vollständigkeit der Angaben kann keine Gewähr bzw. Haftung übernommen werden. Ein Zwischenverkauf und Irrtümer sind vorbehalten.
Wir weisen auf unsere Allgemeinen Geschäftsbedingungen hin. Durch weitere Inanspruchnahme unserer Leistungen erklären Sie die Kenntnis und Ihr Einverständnis.
Misschien vind je dit ook leuk



























































































