Dörpen:
KFW 40+ Exkl. Neubau Doppelhaushälfte in beschaulicher
Object-Nr.: 8016#giEdYL

1

2

3

4

5

6

7

8

9

10

11

12

13

14

15

16

4

5


















Prijs:
279.000 €
Woonoppervlak ca.:
79 m2.
Aantal kamers:
3
Provisionsfrei für den Käufer: Dieser exklusive komfortable Neubau Winkelwalmdachbungalow kann auf einem Grundstück ihrer Wahl bzw. auf einem von ihnen zur Verfügung gestellten Grundstück im Emsland oder Ostfriesland erstellt werden. Der Kaufpreis bezieht sich auf das reine Wohnhaus das Grundstück ist nicht im Kaufpreis enthalten.
Die Raumaufteilung ist durchdacht und verfügt durch intelligent angeordnete Fensterflächen über einen klasse Lichteinfall in allen Räumen.
Der moderne und offen gehaltene Küchen / Wohn / Essbereich wird mit bodentiefen Fensterelementen bestückt, die auf die großzügige Gartenterrasse führen. Im Hauswirtschaftsraum befindet sich eine Nebeneingangstür, sowie ein Podest für Waschmaschine & Wäschetrockner. Alle Fenster im Erdgeschoss werden mit E-Rollos ausgestattet. Je nach Baufortschritt kann der Erwerber Wünsche oder Vorstellungen in das Projekt mit einbringen.
Diese exkl. Doppelhaushälfte wird komplett schlüsselfertig inkl. Maler- & Gartenarbeiten erstellt. Auf eine hochwertige und einwandfreie Bauqualität wird geachtet.
Daten Energieausweis: In Vorbereitung!
Grundlegend erstellen wir Gebäude nach BEG EH40 Standard
Bodenbeläge:
Der gesamte Erdgeschossbereich wird mit hochwertigen Domestic-Boden ausgestattet, klasse Optik. Das Badezimmer kann auch nach Wahl mit einer Fliese bestückt werden. Die Fußbodenheizung wird separat von jedem Raum aus geregelt.
Küche:…
Der Küchenbereich ist zum Wohn/Esszimmer hin offen gestaltet. Angrenzend an der Küchen befindet sich der Hauswirtschaftsraum. Kurze und durchdachte Wege. Im Hauswirtschaftsraum befindet sich eine Seiteneingangstür mit Zugang zum Carport. Gerne sind wir Ihnen auch bei der Wahl einer neuen Einbauküche behilflich. Unser Küchen - Studio wird Sie auch in diesem Punkt professionell beraten.
Bäder:
Es wird ein barrierefreies, exklusives Bad installiert. Das Badezimmer wird wie folgt bestückt:
großzügige bodentiefe Dusche, Wannenanlage, Hänge WC (alten gerecht ca. 0,10m höher), Handtuchheizkörper, Waschtisch mit Halbsäule (kleine Ablagefläche), deckenhohe und großformatige Verfliesung, hochwertige Elemente und Armaturen.
Garage:
Die Doppelhaushälfte verfügt über ein großzügiges Carport. Über eine Seiteneingangstür betritt man den Hauswirtschaftsraum. Im hinteren Bereich des Carports befindet sich ein Geräteraum.
Grundstück:
Das Gartengrundstück wird komplett angelegt. Die Freiflächen werden mit Rasensaat versehen. Die Hoffläche (Carport, PKW - Einstellplatz, Eingangsbereich) und die Gartenterrasse werden großzügig bepflastert.
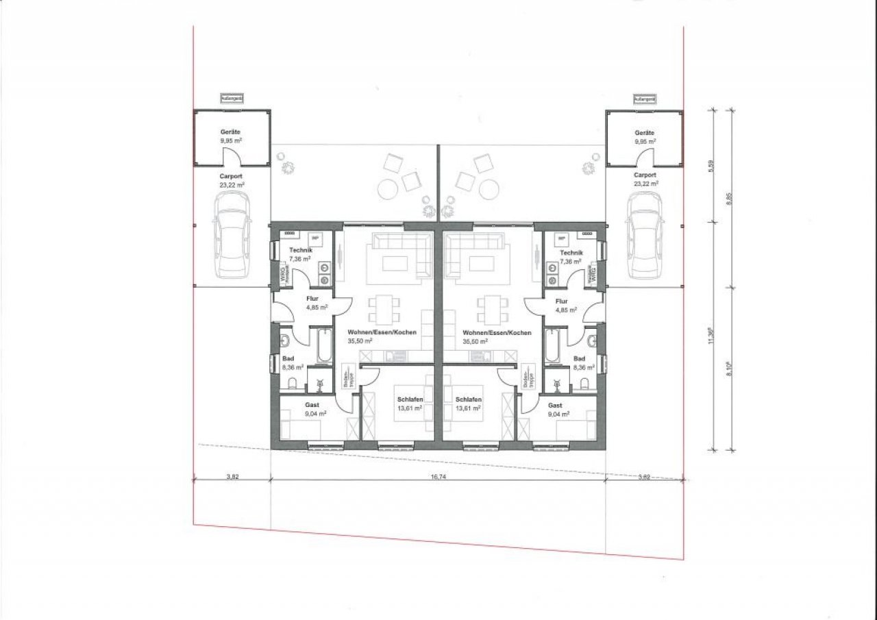
Erdgeschoss:
Flur ca. 4,85 m²
Badezimmer ca. 8,36 m²
Wohnen/Essen/Kochen ca. 35,50 m²
Schlafzimmer I ca. 9,04 m²
Schlafzimmer II ca. 13,61 m²
Technik ca. 7,36 m²
Diese moderne Neubau Doppelhaushälfte wird in einer hochwertigen Bauweise komplett schlüsselfertig nach BEG EH40 Standard erstellt. Aussagekräftige Unterlagen können wir Ihnen gerne bei Bedarf per Mail oder auf dem Postweg zukommen lassen.
Je nach Baufortschritt kann der Erwerber Wünsche oder Vorstellungen in das Projekt mit einbringen.
Bei weiteren Fragen steht Ihnen das Gründer-Immobilien Team aus Dörpen im Emsland jeder Zeit zur Verfügung!
Woningtype: Bungalow
Bad: Douche, Ligbad, Raam
Aantal slaapkamers: 2
Aantal badkamers: 1
Toegankelijk zonder hindernissen: ja
Geschikt voor senioren: ja
Aantal parkeerplaatsen: 1
Aantal parkeerplaatsen: 1 x Parkeerplaats buiten
Bouwjaar: 2024
Beschikbaar vanaf: Nach Fertigstellung
Vloerbedekking: Vloertegels
Toestand: Nieuw te betrekken
Verwarming: Vloer
Verwarmingssoort: Warmtepomp
Type energiebewijs: certificaat vraag
Energie-efficiëntieklasse: A+
Bouwjaar volgens energiecertificatie: 2024
Bei Abschluss eines Kaufvertrages wird eine Vermittlungs-/ Nachweisprovision in Höhe von 3,25 % inklusive 19 % Mehrwertsteuer auf den Kaufpreis vom Käufer fällig.
Die von uns gemachten Informationen beruhen auf Angaben des Verkäufers bzw. der Verkäuferin. Für die Richtigkeit und Vollständigkeit der Angaben kann keine Gewähr bzw. Haftung übernommen werden. Ein Zwischenverkauf und Irrtümer sind vorbehalten.
Wir weisen auf unsere Allgemeinen Geschäftsbedingungen hin. Durch weitere Inanspruchnahme unserer Leistungen erklären Sie die Kenntnis und Ihr Einverständnis.
Misschien vind je dit ook leuk
























































