Haselünne:
Exklusiver Neubau – Satteldachbungalow
Object-Nr.: 8015#giEdYL

1

2

3

4

5

6

7

8

9

10

11

12

12

13

15

16

17

18

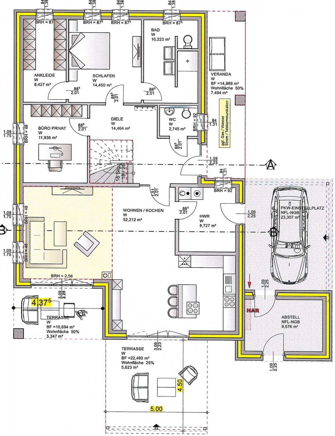
EG



















Prijs:
390.000 €
Woonoppervlak ca.:
122,70 m2.
Aantal kamers:
3
Provisionsfrei für den Käufer: Dieser exklusive komfortable Neubau Satteldachbungalow kann auf einem Grundstück ihrer Wahl bzw. auf einem von ihnen zur Verfügung gestellten Grundstück im Emsland oder Ostfriesland erstellt werden. Der Kaufpreis bezieht sich auf das reine Wohnhaus das Grundstück ist nicht im Kaufpreis enthalten.…
Das großzügige Wohnhaus besticht durch seine außergewöhnliche Architektur und bietet diverse repräsentative Besonderheiten. Großzügige, lichtdurchflutete Räume gepaart mit elegantem Pfiff geben dieser Traumimmobilie den besonderen Glanz. Im Dielenbereich befindet sich eine Aussparung (Treppenloch) in der Betondecke. Hier wäre der Einbau einer formschönen Treppenanlage möglich. Der gesamte Dachgeschossbereich (ca.70 m²) ist ausbaufähig. Der Empfangsbereich ist der Mittelpunkt dieser Immobilie, von hieraus gelangt man auf der einen Seite in den Schlaftrakt sowie auf der anderen in den großzügigen und offen gestalteten Küchen/Wohn/Essbereich. Absoluter Blickfang ist im Wohnbereich die offene Decke bis in die Dachspitze und durch die große Glasfront hat man freie Sicht in den Garten. Alle hinteren Fensterelemente der Immobilie werden bodentief angeordnet. Die überdachte Gartenterrasse ist vom Wohnbereich zu gängig. Es befinden sich 2 Schlafzimmer, ein großzügiges Bad und ein zusätzliches Gäste WC im Objekt. Dieser Satteldachbungalow wird komplett schlüsselfertig inkl. Maler- & Gartenarbeiten erstellt. Auf eine hochwertige und einwandfreie Bauqualität wird geachtet.
Daten Energieausweis: In Vorbereitung !
Grundlegend erstellen wir Gebäude nach BEG EH40 Standard
Woningtype: Bungalow
Bad: Douche, Ligbad, Raam
Aantal slaapkamers: 2
Aantal badkamers: 1
Gastentoilet: ja
Aantal parkeerplaatsen: 1
Aantal parkeerplaatsen: 1 x Parkeerplaats buiten
Bouwjaar: 2024
Beschikbaar vanaf: Nach Fertigstellung
Vloerbedekking: Vloertegels
Toestand: Nieuw te betrekken
Verwarming: Vloer
Verwarmingssoort: Warmtepomp
Type energiebewijs: certificaat vraag
Energie-efficiëntieklasse: A+
Bouwjaar volgens energiecertificatie: 2024
Bei Abschluss eines Kaufvertrages wird eine Vermittlungs-/ Nachweisprovision in Höhe von 3,25 % inklusive 19 % Mehrwertsteuer auf den Kaufpreis vom Käufer fällig.
Die von uns gemachten Informationen beruhen auf Angaben des Verkäufers bzw. der Verkäuferin. Für die Richtigkeit und Vollständigkeit der Angaben kann keine Gewähr bzw. Haftung übernommen werden. Ein Zwischenverkauf und Irrtümer sind vorbehalten.
Wir weisen auf unsere Allgemeinen Geschäftsbedingungen hin. Durch weitere Inanspruchnahme unserer Leistungen erklären Sie die Kenntnis und Ihr Einverständnis.
Misschien vind je dit ook leuk


















































