Oldenburg:
Käufer Provisionsfrei! Wertstabil & energieeffizient: Dreifamilienhaus in begehrter Wohnlage
Object-Nr.: 8469#giEdYL

Modernes 3-Familienhaus

Hausansicht

Hausansicht

5

Hausansicht Garten EG-Wohnung

Hausansicht Balkone

8

Zufahrt Gebäude

Hausansicht Zufahrt

Wohnen/Küche

Wohnzimmer

Wohnzimmer

Wohnzimmer

Schlafzimmer mit Ankleide

Schlafzimmer mit Ankleide

Schlafzimmer

Hauswirtschaftsraum

Badezimmer

Badezimmer

Badezimmer

Flur

Gäste-WC

Gäste-WC

Balkon/Loggia

Balkon

Treppenhaus

Treppenhaus

Balkon

Balkon

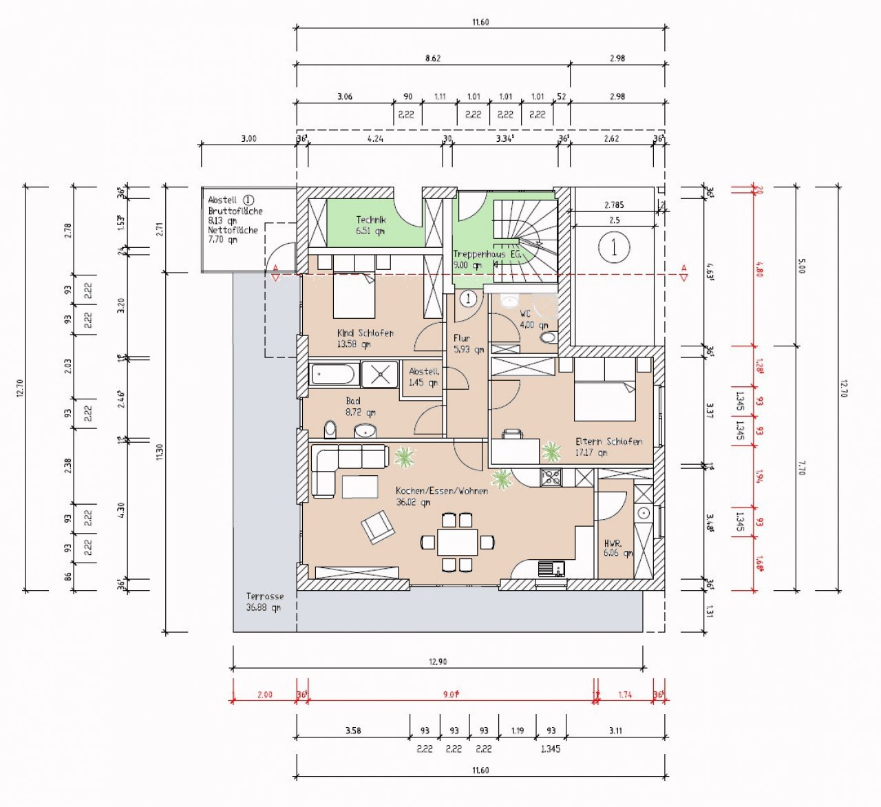
Grundriss Erdgeschosswohnung

Grundriss Obergeschosswohnung

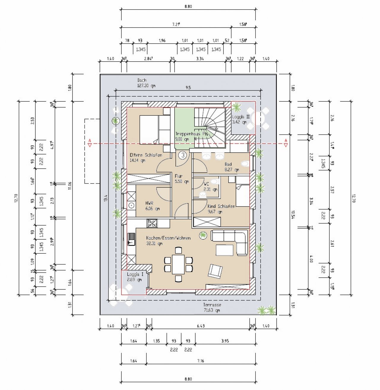
Grundriss Penthousewohnung

Schnitt A-A

































Prijs:
1.799.000 €
Woonoppervlak ca.:
372 m2.
Grondstuk:
485 m2.
Aantal kamers:
9
Käufer Provisionsfrei! Hochwertiges Dreifamilienhaus in Top-Lage von Oldenburg-Osternburg | Moderne Kapitalanlage mit Zukunft
In einer der beliebtesten Wohnsiedlungslagen Oldenburgs präsentiert sich dieses im Jahr 2023 fertiggestellte Dreifamilienhaus als außergewöhnliche Investitionsmöglichkeit für anspruchsvolle Kapitalanleger. Das Objekt wurde in moderner Bauweise nach KfW-55-EE-Standard errichtet und überzeugt durch seine energieeffiziente Technik, großzügigen Grundrisse sowie hervorragende Vermietbarkeit.
Zwei Wohnungen stehen aktuell leer und eignen sich perfekt für eine zeitnahe Neuvermietung – ein Mietpreis von ca. 12,- €/m² ist realistisch erzielbar. Die Erdgeschosswohnung ist bereits langfristig vermietet und garantiert stabile Mieteinnahmen ab dem ersten Tag.
Das vollständig eingezäunte Grundstück, mehrere PKW-Stellplätze sowie ein separater Fahrradschuppen runden das attraktive Gesamtbild ab.…
Das moderne Mehrfamilienhaus umfasst drei helle, hochwertig ausgestattete Wohneinheiten, die jeweils zwischen 119 m² und 133 m² Wohnfläche bieten. Große, nahezu bodentiefe Fenster sorgen in allen Räumen für ein lichtdurchflutetes Ambiente und schaffen ein offenes, freundliches Wohngefühl.
Die großzügigen Balkone und Terrassen bieten einen erholsamen Außenbereich mit Blick ins Wohngebiet und erhöhen die Wohnqualität der Mieter erheblich. Durchdachte Grundrisse, moderne Bäder und hochwertige Materialien verleihen jeder Wohnung eine hochwertige Wohnatmosphäre, die langfristig stabile Mietverhältnisse erwarten lässt.
Dieses Dreifamilienhaus verbindet moderne Effizienz, zukunftssichere Technik und eine nachhaltig starke Vermietbarkeit. Die hochwertige Ausstattung, die energieeffiziente Bauweise und die gefragte Lage machen dieses Objekt zu einer idealen Kapitalanlage für Anleger, die Wert auf Sicherheit und langfristigen Ertrag legen.
Wenn Sie möchten, formuliere ich gern auch eine verkaufsstarke Schlagzeile, eine Kurzbeschreibung für Immobilienportale oder eine Meta-Beschreibung.
Woningtype: Meergezinswoning
Op provisiebasis: nee
Keuken: Inbouwkeuken
Bad: Douche, Raam
Aantal slaapkamers: 6
Aantal badkamers: 3
Balkon: 4
Terras: 1
Aantal parkeerplaatsen: 4
Aantal parkeerplaatsen: 4 x Parkeerplaats buiten
Bouwjaar: 2023
Beschikbaar vanaf: Nach Vereinbarung
Vloerbedekking: Vloertegels
Toestand: Als nieuw
Verwarming: Vloer
Verwarmingssoort: Warmtepomp
Type energiebewijs: Energiepas ligt ter inzage
Die von uns gemachten Informationen beruhen auf Angaben des Verkäufers bzw. der Verkäuferin. Für die Richtigkeit und Vollständigkeit der Angaben kann keine Gewähr bzw. Haftung übernommen werden. Ein Zwischenverkauf und Irrtümer sind vorbehalten.
Wir weisen auf unsere Allgemeinen Geschäftsbedingungen hin. Durch weitere Inanspruchnahme unserer Leistungen erklären Sie die Kenntnis und Ihr Einverständnis.
Misschien vind je dit ook leuk






















































































































